High School #9 for the Visual and Performing Arts
Los Angeles, USA
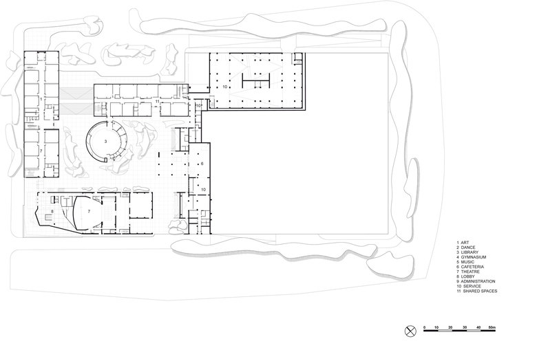
Like chess figures three sculptural buildings dominate the campus of the High School #9: a tower as sign for the arts, a public lobby, and the library in the center. All three buildings can be seen from the main school entrance via a 24 m wide grand stair. The central location of the site downtown, separated from the Grand Avenue corridor by the 101 freeway and thus visually exposed along the edge of one of the most widely used thoroughfares in downtown Los Angeles, served Coop Himmelb(l)au as the point of departure for the architectural concept for the school. To provide public spaces within a high school through the architecture and supported by the performing arts program is one of the main contributions of this project to education and the community, and unique in contemporary public school buildings in Los Angeles. The facilities for the four academies for Visual Arts, Performing Arts, Music and Dance are used by about 1,800 students and include classrooms, studios and administrative spaces. Shared spaces are grouped around the main school courtyard: the library, a public 950 seat performing arts theater, a cafeteria, administrations spaces, science rooms, and open air facilities.
Architectural Signs - Chess Concept – The theater complex consists of the entrance lobby, main auditorium with orchestra pit, stage with fly loft, back stage, and an outdoor amphitheater with stage area. The theater with a seating capacity of 950 visitors will allow the students to learn all technical aspects of operating on a professional stage and will be open to the public for performances. A tower with spiralling ramp in the shape of the number 9 is located on top of the theater’s fly-loft serves as a widely visible sign for the arts in the city. Inside the tower, an event, conference and exhibition space with a view across the city is located. As the symbol for learning and education the library is formally expressed through a slanted, truncated cone and placed in the center of the school courtyard. Inside, the cone provides a large open space illuminated from above by a circular skylight. This offers an open, dynamic, but introverted and concentrated space for contemplation and focused learning.The four classroom buildings form the perimeter of the school’s interior courtyards. The functional boxes house one academy each as well as other shared educational and administrative spaces. Each building is organized with a central corridor which doubles as an exhibition gallery. Generous open public stairways with lookout points to the exterior and expressive entrances serve as transition spaces between the exterior and interior. Each academy building houses its general classrooms, art studios, workrooms, and satellite administration spaces. Along Grand Avenue and at strategic viewpoints around the site large round windows are placed to create a distinct and lively exterior and to allow passers by a glimpse of the activities within the school. Likewise, students inside the buildings will have visual contact with the city with constantly changing perspectives and frames. In addition to the public entrance on Grand Avenue the seven buildings frame the representational main school entrance. A 24 m wide grand open stair leads directly into the main school courtyard with the conical library in its center and theater and tower in the background. The main entrance symbolically sets the stage for the students to experience this school as a decisive stage in their life and education.
Material and colour concept – The materials and colours chosen for the project are an integral part of the architectural conception. The three sculptural forms - the tower, lobby and library - are clad in bead blasted stainless steel. Its softly reflective surface enhances the sculptural quality of the buildings and sets them apart from the rest of the campus. For acoustical reasons exposed concrete was chosen as the structural end exterior material of the theater. Its heaviness and the absence of openings create a powerful abstract form in whose hidden interior the space for special events can be found. The visual arts building – situated visibly along Grand Avenue – is clad elegantly in dark grey powder coated aluminum panels and accentuated through a façade of irregular round windows. The dance, music and administration buildings towards the back of the campus are clad in smooth grey plaster.
Environmental, Energy and Building Services Concepts – Inside the buildings several strategies are employed to enhance energy efficiency: Integrated space planning for all buildings to create a synergy of function and form. Most effective duct distribution layout to avoid excess unused plenum space. Reduce volume of conditioned space to the area where people are through intelligent placement of supply and return air registers, instead of conditioning unused space. Operable windows in all spaces except specialty rooms to allow for fresh air to contribute to space ventilation. In addition, separate HVAC controls for each classroom.
Client
LAUSD – Los Angeles Unified School District, CA
User
LAUSD Local District 4
Architect
Planning: Coop Himmelb(l)au – Wolf D. Prix, Helmut Swiczinsky, Wolfdieter Dreibholz ZT GmbH
Design Principal: Wolf D. Prix
Project Partner: Karolin Schmidbaur
Design Architects: Karolin Schmidbaur, Dionicio Valdez
Project Architects: Ing-Tse Chen (2002-2004), Andrea Schöning (2006-2008)
Project Team: Joshua Ashcroft, Jorge Avila, Jesper Bork, Benedikt Frass, Sergio Gonzalez, Bo Stjerne Hansen, Christoph a. Kumpusch, Neiel Norheim, Luis Palomares, Patricia Schneider, Craig Unterseher, Norio Watanabe
Color and Material: Anja Sorger
Executive Architect: HMC Architects, Ontario / Pasadena
Consultant
Structural Engineering: TMAD Taylor and Gaines, Pasadena
HVAC Consultant: ACEA, Inc., Arcadia
Electrical Consultant: Roshanian and Associates, Los Angeles
Acoustic: Martin Newson & Associates LLC, Santa Monica
Theater Consultant: JK Design Group, Granada Hill
Food service: Mace Murphy Design Group, Las Vegas
Pool: Rowley International, Inc., Palos Verdes Estates
Civil Engineering: A. C. Martin Partners, Los Angeles
Landscape Consultant: Melendrez Design Partners, Los Angeles
General Contractor: PCL Construction Services, Inc., Los Angeles
Cast-in-Place Concrete: Morley Builders, Santa Monica
Steel Construction: Maya Steel Fabrications, Inc., Los Angeles
Framing, Drywall and Plaster: Davcal, Inc., Placentia
Metal Panels and Sheet Metal Construction: CMF Custom Metal Fabricators, Inc., Orange, USA with Riverside Group Rainscreen Cladding, Windsor Ontario
Lobby Sloped Glazing Design and Construction: ASI Advanced Structures, Inc., Santa Monica, USA / Enclos Corporation, Los Angeles
Glazing and Curtain Wall: Huntington Glazing, Los Angeles
Skylights: Metcoe Skylight Specialties, Gardena
Mechanical Contractor: KK Mechanical, Ogden
Electrical Contractor: Howe Electric, Inc., Fresno
Site Concrete Work: Marne Construction, Orange
Theater Seating: Sierra School Equipment Company, Bakersfield
Chronology
Interview Competition: 09/2002
Start of Planning: 10/2002
Start of Construction: 03/2006
Completion: 10/2008
Project data
Site Area: 39,578 m²
Net Floor Area without parking: 21,204 m²
Net Floor Area with parking: 29,098 m²
Gross Floor Area: 31,138 m²
Footprint: 11,839 m²
- Arquitectos
- Coop Himmelb(l)au
- Año
- 2008
- Estado del proyecto
- Construido





















