House Of Secret Gardens
Ahmedabad, India
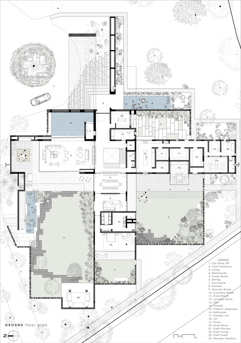
This is a private home in Ahmedabad, is an expression in Dhrangadhra stone. The stone used in many of the architectural antiquities of Ahmedabad. The stone has a mottled texture and bone coloration, available in blocks; slabs and dust from quarries nearby it became an obvious choice. It ages pretty well too. The cellular structure of this sandstone holds intermittent microscopic air gaps, acting as an insulation panel itself. This led to the idea of cladding the entire body of the house as a monolith. The organization of the plan is like a simple cross. This allows for one room thick arms, hence permitting easy cross ventilation and possibility of a seamless connect with the outdoors. The stone is used in giant blocks vertically to form a periphery, a border to the gardens to frame the edges, allow breezes, and a sense of containment and scale. This frame allows the home to be immersed within the greens, considered imagery and landscape will form the surrounds of the cross shaped construct.
Movement – From the entry through to the main stair volume at the Centre of the cross, the hallways of the home are so modulated that the sense of sauntering between inside and outside is heightened. Even externally, the body of the house can be surmounted via ascending stairs in solid stone, to discover an elevated garden roof. This home promotes the use of external spaces, all along the edges of the cross layout.
Searing light – In Ahmedabad, we find the light very sharp and harsh at times, comfort can be achieved by darker wall or floor surfaces to reduce reflected glare.
Ventilation – Courtyards facilitating the convectional movement of air, will be a major part of the passive climate control in the home, stone fins , rough cuts perpendicular to the building face , cause incident shadows hence cooling the face and creating an ever-changing rhythm of shadows and light. The interiors are embellished with rich woodworked boxes that contain wardrobes and large luxurious ensuite bathrooms, sitting within a volume of ceilings and walls all rendered in lime plaster had applied like stucco.
Art and objects – Chosen from the client’s collection and commissioned from local artists, the home will abound several bespoke objects and pieces, many of which are designed by SPASM for this project in particular. We searched for a custom fit to the client’s life style, aspirations and needs .A project in which the architecture is inspired and echoes a contemporary yet sensible and slick way of occupying the site.
The Gardens – Intended as seamless extensions of the living spaces the gardens will over the years mature as view boxes which come alive with the moving sun, breezes animating them and rain imbuing the home with the fresh aroma of the dry earths thirst quenched.
The MONK – A long search for an appropriate emotion for the water body, ended in the commissioning of a life size sculpture of a pensive monk, in Beslana stone gingerly poised on the water’s surface as if levitating.
The client – His long search for the right architect ended with us, ever since a call every single day without fail followed, clearly we became like a drug, a fix, keeping the daily sense of invention, ideas and fervor going. We, love this depth of involvement, his curious nature in unravelling how each aspect of his ask and beyond was arrived at……
The plans adopt a strategy of roofed and open air rooms….
The aim was to deliver a home which allows its occupants to live a life in the bosom of nature, sensing the seasons, entertaining their family and friends and juicing the joys of a well-placed life……with art, sculpture, objects, contributing to the serenity of the home. Architecture we believe is about summoning beauty and distilling moments of tranquil inner happiness, an awareness of just being and celebrating a single breath when everything is perfect.
- Arquitectos
- Spasm Design Architects
- Año
- 2018
- Estado del proyecto
- Construido































