HQ Microsoft Österreich
Wien, Austria
Das Joint Venture von INNOCAD mit KOOP Live Marketing entwickelte in Zusammenarbeit mit Microsoft die „Neue Arbeitswelt“ für moderne, zukunftsorientierte Arbeitnehmer im Microsoft Headquarter in Wien. Im gesamten Raum spielt die Architektur eine Schlüsselrolle, die „neues Arbeiten“ in Bezug auf Funktionalität, Infrastruktur und Designkonzept ermöglicht.
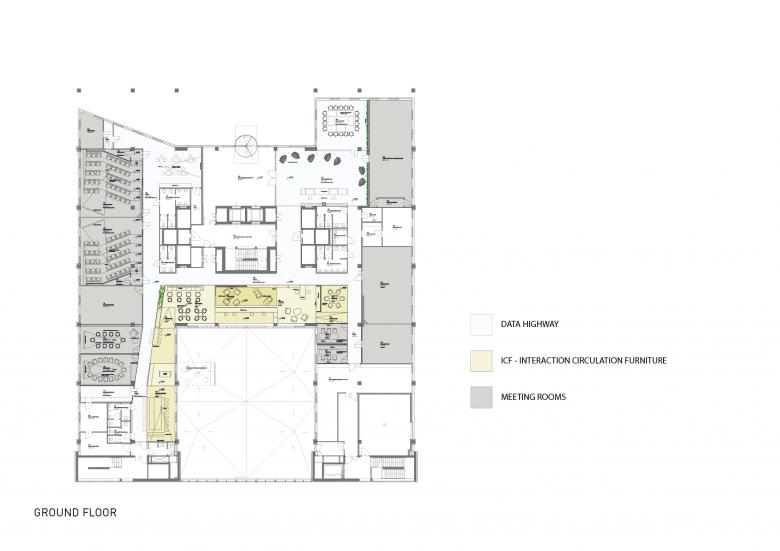
Das Team schafft ein ideales Arbeitsumfeld, indem es eine einzigartige Harmonie zwischen Mensch, Raum und Technologie entwickelt. Die Verbindung aller drei Stockwerke ist das zentrale Element der Microsoft-Zentrale, die Folgendes umfasst: ein Kommunikationszentrum, das die Interaktion mit Schnittstellen fördert, kreisförmige Möbel, Cafés, verschiedene Lounges, Coffee-Points, eine Bibliothek und weniger öffentliche Rückzugsräume, die eine Vielzahl von Aktivitäten fördern von spontanen Meetings bis hin zum Powernapping. Desk-Sharing, Remote Work, hohe Mobilität, Resident – jeder dieser Mitarbeiter erhält eine optimierte Wohlfühl-Arbeitsumgebung, die maximale Produktivität ermöglicht. 23 Tagungsräume mit unterschiedlichen Konfigurationen stehen zur Verfügung und können einfach über Microsoft Outlook gebucht werden.
Es gibt auch zusätzliche Räume für schnelle Meetings oder Telefonkonferenzen. 330 Mitarbeiter teilen sich Großraumbüros mit 220 Arbeitsplätzen und 65 festen Arbeitsplätzen. Die Ergebnisse optimierten die Gesamtnutzfläche um 10 % bei gleichzeitiger Erweiterung der Gemeinschaftsbereiche und senkten gleichzeitig die Betriebskosten des Büros. Durchschnittlich 10 % mehr Mitarbeiterzufriedenheit, 12 % Produktivitäts- und Effizienzsteigerung, weniger benötigte Stellfläche, verbesserte CO2-Bilanz und viele andere ähnliche positive Ergebnisse können erreicht werden und sind bereits messbar.
- Arquitectos
- INNOCAD
- Año
- 2011
- Estado del proyecto
- Construido
- Cliente
- Microsoft Österreich GmbH
- Live Marketing
- KOOP




























