Il Sole 24 Ore Headquarters
Viale Sarca 223, Milan, Italia
An introverted building transformed in the permeable and accessible headquarters of Il Sole 24 Ore.
This hard retrofitting intervention turned a monolithic and introverted structure into an open, accessible and enjoyable building. The research on the façade, the bright and flexible interior spaces, suitable to the needs of the tenant, the Il Sole 24 Ore publishing group, and the large terrace overlooking the city and the surrounding landscape, characterize the project.
Many of the buildings built in the 1980s in the Bicocca district, northeast of Milan, are now the object of restyling and adaptation to the new sustainability needs of the urban fabric.
Created in 1988 to house offices and originally owned by the pharmaceutical company Alfa Wassermann, this headquarters is one such building.
The architectural and creative challenge of redeveloping the building is a first step in the realisation of a project that is respectful of both man and the environment within the urban fabric and that gives this architecture a second chance and a new lease of life.
Park Associati’s building transformed the inward-looking cubic volume wrapped up in the underperforming opaque metal and glass envelope a building with an innovative design that could maximise people's wellbeing and meet the requirements of energy saving and low environmental impact.
Objectives of living, working and social wellbeing have been the priorities of the requalification.
On the outside, the project envisages a remodelling and reconstruction of the façade that aims to give the structure a more slender shape. The alternation of transparent glass sections and screen-printed glass panels separated by metal pilaster strips outlines glazed spans that reflect light differently. The double-height loggias break the uniformity of the façade’s surface, embellishing it and create a sense of three-dimensionality.
The entire north side and the external stairwell to the south are covered with press-formed micro-perforated painted sheet metal; for the other two façades, this material creates a volume similar to a diaphragm that gives a perception opposite to that of glass — an ethereal covering of the building’s two opposing fronts that resembles a lightweight veil. The composition is thus completed and the resulting building has a simple, clean and eye-catching look.
A clear-cut access path accompanies employees and visitors, welcoming them to the building.
A cantilever roof leads to the entrance hall, a double-height space characterised by lighting that acts as a signalling system that simplifies the flows. Of these, one leads to the bar located on the ground floor and to the garden, the other directly to the lifts. The lighting bodies are located inside a polycarbonate corridor that lets the light shine through, amplifying it and giving it a three-dimensional feel. Light thus becomes another strong architectural mark. The ground floor café overlooks the greenery of the garden, where trees and shrubs of different shapes and colours — depending on the season — offer shade and colour to the outdoor seating.
This area is a meeting place for colleagues and a reference point for meetings with external guests.
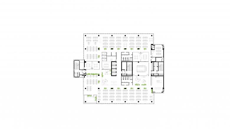
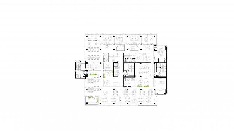
Marked by extreme flexibility, the layout of the office floors can be adapted to suit different
requirements and functions. The main characteristic of these spaces is their direct and consistent relationship with the outside environment, which results in a feeling of great spaciousness.
Those working here can enjoy natural lighting and a panoramic view of the city and can also sit and relax in the loggias that accommodate fargesia plants — a variety of bamboo characterised by thick foliage.
The panoramic loggias on the fifth floor, which accommodates the Radio 24 studios, can also be used for meetings and interviews.
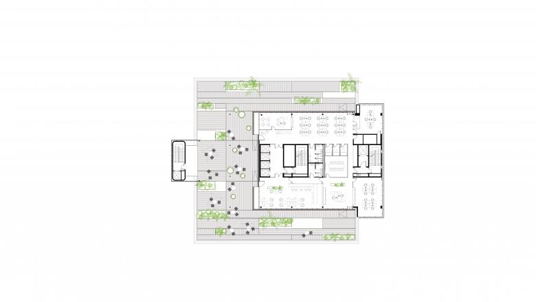
The tenth and penultimate floor is the floor that did not exist previously. Once housing the technical
rooms, it has been completely refurbished and transformed into a showroom and meeting rooms.
An 850-square-metre terrace covered by a canopy adjacent to the glazed meeting rooms on the tenth and penultimate floor houses a roof garden, a space that can be enjoyed both during the day and at night thanks to the sophisticated lighting design that is the building's distinguishing feature.
The project obtained the LEED certification, GOLD, Core and Shell class.
The headquarters of Il Sole 24 Ore is a light, bright solid, a container responsive to the present and future demands of its office environment.
- Arquitectos
- Park Associati
- Año
- 2021
- Estado del proyecto
- Construido
- Cliente
- AXA Investment Managers Real Asset
- Equipo
- Filippo Pagliani, Andrea Riva, Enrico Sterle, Marco Vitalini, Corrado Collura, Valerio Conti, Michele Rossi, Alessandro Rossi, Matteo Arietti, Mario Frusca
- Project Management
- J&A Consulting, Milano
- Structural Engineering
- J&A Consulting, Milano
- Fire Consultancy
- GAe Engineering, Torino
- Mechanical and electrical Engineering
- Coprat, Mantova
- Executive and administrative project
- Planimetro, Milano
- Leed Certification
- Greenwich, Medolago (BG)











