Ismet - Bimal Residence
Ahmedabad, India
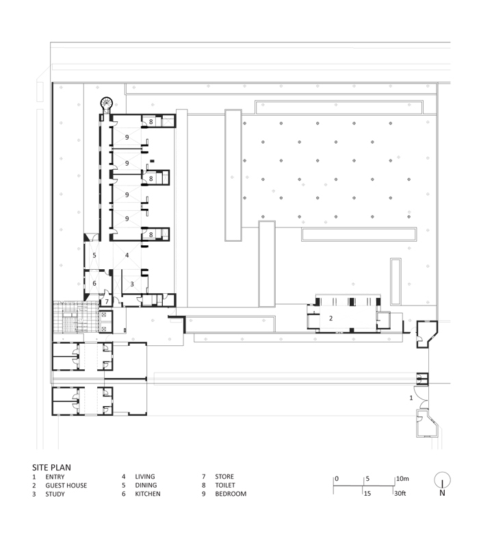
Bimal Patel’s own house, designed in collaboration with architect – furniture designer wife, Ismet Khambatta, is sited on a rectilinear 3022 sq.m. plot in Rambaug, off S G Highway. It is a single storeyed structure and provides a built-up area of 604 sq. m. including the guest house and servants’ quarters.
The architect couple had envisioned a minimalistic and tranquil dwelling nestled in a lush landscape. Accordingly, the house is designed as a linear building along the rear edge of the plot with a large garden in the front dotted with shady trees. There is a certain ease and informality about the house and it doesn’t exhibit any hierarchy of spaces. Instead, each space opens onto a low verandah overlooking the garden, while still retaining its privacy and intimacy. The garden forms an integral component of each space and is framed by the low verandah. From the entrance portico, a narrow corridor leads to the living dining areas. From there, a longer corridor, lined with book shelves connects to the bedrooms. The roof over each space is lifted to facilitate natural ventilation and entry of daylight. There are no windows in the house, but only large glazed doors and louvered panels which regulate light and air.
With its large, leisurely verandahs, exposed brick and concrete surfaces, relaxed environment and lush landscape, the house exhibits the character of a weekend resort.




























