Kindertagesstätte und Kindergarten in Hinwil
Breitestrasse, Hinwil, Switzerland
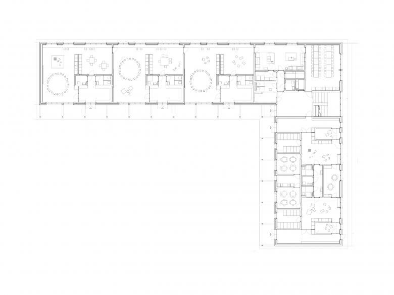
Der Neubau für die zwei Kindertagesstätten und die drei Kindergärten mit Büros für die Schulverwaltung passt sich präzise in das Grundstück ein und bietet eine optimale Orientierung und Besonnung der Räume.
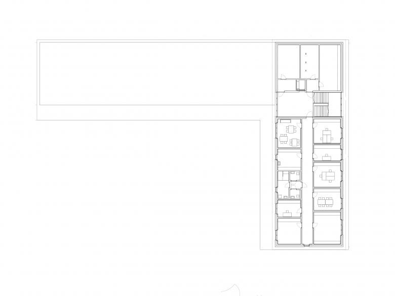
Das L-förmige Gebäude ist zwischen der Schule Breite, dem Friedhof, sowie der Bachtel- und Breitestrasse situiert. Es werden gut nutzbare und definierte Aussenräume gebildet, die den einzelnen Funktionen zugeordnet sind. Von der Bachtelstrasse im Norden ist der Bau eingeschossig wahrnehmbar – von der Schule Breite im Süden jedoch als zweigeschossiges Gebäude.
Alle drei Kindergärten sind linear entlang der Längsseite des Grundstückes angeordnet. Die Haupträume sind ideal Ost/West orientiert und verfügen über einen individuellen, direkten Zugang von aussen. Die Kita ist mit separaten Eingängen organisiert, die beiden Gruppen teilen effizient die Infrastrukturelemente.
Der Gemeinschaftsbereich ist um eine direkte Treppenverbindung zum Obergeschoss organisiert. Im Schnittpunkt der beiden Schenkel des Gebäudes befindet sich die grosszügige Eingangshalle zusammen mit der Grossküche und dem Essraum. Über den gedeckten Vorbereich und eine interne Verbindung (Enfilade) haben die Kindertagesstätten und die Kindergärten Zugang zu diesem Bereich.
- Arquitectos
- Eglin Partner Architekten
- Año
- 2021
- Estado del proyecto
- Construido
- Cliente
- Gemeinde Hinwil
- Equipo
- Makiol + Wiederkehr, Holzbauingenieure MWV Bauingenieure AG, Baden Leimgruber Fischer Schaub AG, Ennetbaden P. Keller + Partner AG, Baden Steigmeier Akustik + Bauphysik GmbH, Baden Schrämmli Landschaftsarchitektur














