Kirchgemeindehaus Zürich Unterstrass
Turnerstrasse 45, Zürich, Switzerland
Zeitgemässes Wohnen in ehemaligem Pfarrhaus
Im Zuge einer umfassenden Neuorganisation der Evangelisch-reformierten Kirchgemeinde Zürich, werden gewisse ursprünglich kirchlich genutzten Liegenschaften einer neuen und zeitgemässen Nutzung zugeführt.
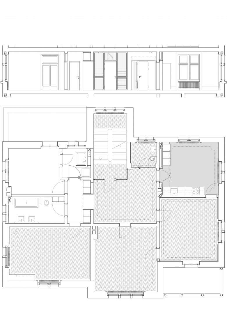
Das 1904 vom Architekten Rudolf Müller in solidem Jugendstil als Pfarrhaus erbaute Gebäude, wird inklusive einigen äusseren Anpassungen und einem kompletten Fensterersatz, im ersten Obergeschoss umgebaut. Die zwischenzeitlich als Büro genutzten Räumlichkeiten, werden in eine grosszügige Stadtwohnung verwandelt. Dabei wird mit gezielten räumlichen und materiellen Eingriffen die ursprüngliche Bestimmung des Hauses in eine zeitgemässe Wohnnutzung übergeführt.
Neben einer umfassenden Auffrischung des Bestandes, mit hochwertigen Holzböden in den Zimmern, Terrazzoböden in ehemaliger Küche und Badezimmer, sowie Wandvertäfelungen, Einbauschränken und Deckenstuckaturen, wird mit einer neuen Wohnungstüre die herrschaftliche Eingangshalle vom Treppenhaus abgetrennt, die Erschliessung der zur Kirche orientierten Zimmer grosszügig geöffnet, und die fehlenden Sanitärräume und eine Küche eingebaut. Ebenfalls werden die haustechnischen Installationen angepasst oder ersetzt. Die bei mehrmaligen Umbauten erfolgten Einbauten und Verkleidungen werden entfernt, und die noch vorhandene Originalsubstanz wird wieder freigelegt.
Die neuen Einbauten orientieren sich am Bestand. Durch Aufnehmen der Wertigkeit der Materialien, durch Reagieren auf die Farbgebung, oder auch durch bewusstes Kontrastieren der vorhandenen Elemente. Die Architektur des neuen Wohnungsabschlusses zum Treppenhaus mit grünem Holzwerk und Riffelglas, nimmt in abstrahierter Weise Bezug auf die Jugenstilfenster des Treppenraumes. Die in mehrfarbigem Feinsteinzeug-Mosaik gefasste Badewanne und Waschbecken, reagiert augenzwinkernd auf den vorhanden Terrazzoboden, und die Ausstattung der neuen Küche mit mehrfarbiger Metall-Küche und neuem Linoleumboden, ergänzt die bestehende Architektur in erfrischendem Kontrast.
- Arquitectos
- Felder Architektur
- Año
- 2022
- Estado del proyecto
- Construido
- Cliente
- Evangelisch-reformierte Kirchgemeinde Zürich
- Equipo
- Lukas Felder, Jan Gollob














