Lager- und Werkstattgebäude Im Bernet
Sindelfingen, Alemania
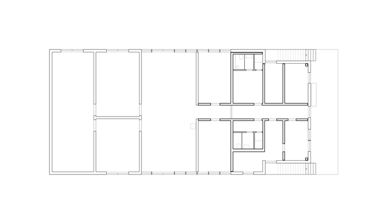
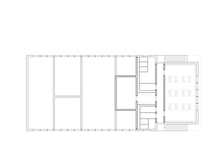
Der Neubau besteht aus einem 2-geschossigen Einbau aus Ortbeton und einem ‚übergestülpten’ kubischen Volumen in Holzbauweise. Der Einbau beinhaltet im EG die Büro- / Sozialbereiche der Mitarbeiter sowie die Schweiß- und Elektrowerkstatt. Im von außen separat erschlossenen OG des Kopfbaus wurden ein Aufenthaltsraum, Sanitärräume und der zentrale Haustechnikraum angeordnet. Im 2-geschossigen Hallenteil befinden sich die Lagerbereiche. Das Gebäude wurde in Holz- Ständerbauweise errichtet. Alle Außenwände wurden in 1,25m breiten und
gebäudehohen Wandstreifen elementweise vorgefertigt. Die Außenwandverkleidung besteht aus hinterlüfteten weißen Faserzementtafeln im Regelformat 125cm x 300cm.
- Arquitectos
- SFA Simon Freie Architekten BDA
- Estado del proyecto
- Diseño

















