Lancy Pont-Rouge et Espace Public de la Praille
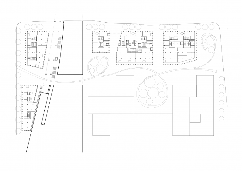
Découpant les masses imposées par un plan d’urbanisme rigide, le projet crée une constellation de bâtiments aux volumes différenciés. Leur modelage produit une succession de places et de rues qualifiant le tissu urbain pour l’étendre à partir de la nouvelle gare CFF de Pont-Rouge. Habillant ce découpage des masses à grande échelle, la trame de façade révèle les bureaux et précise l’échelle de l’intervention, mettant l’accent sur de grandes loggias où les personnes apparaissent de manière spectaculaire. Hauteur et perméabilité des portiques au rez désignent l’activité commerciale. Développement durable et économie d’énergie font l’objet d’un cahier des charges précis et ambitieux des CFF, auquel le projet doit répondre.
La pierre inscrit le projet dans la durée, par sa résistance et son intemporalité. Seul matériau de revêtement extérieur, mise en œuvre à joints serrés, elle définit les pleins et les ombres des façades. Accompagnant le piéton, elle contribue aussi à l’urbanité des sols extérieurs, en grande surface, en creux pour les caniveaux, en ruban de marbre clair affleuré ou émergeant du sol.
Les places sont thématisées par la végétation et l’usage : à l’est, l’Esplanade de l’Etoile accueille des saules, au centre la cour aux sophoras, puis la cour aux séquoias et enfin la place de la gare.
- Arquitectos
- PONT12 architectes sa
- Año
- 2019
- Estado del proyecto
- Construido
- Cliente
- CFF Immobilier
- Ingénieur civil
- EDMS SA
- Ingénieur CVS
- Weinmann-Energies SA
- Ingénieur E
- Perrottet Ingénieurs-conseils en électricité SA
- Ingénieur E
- MAB Ingénierie SA
- Ingénieur géotechnicien
- Karakas & Français SA
- Architecte paysagiste
- Raderschallpartner AG+ La Touche
Proyectos relacionados
Magazine
-
-
La Construcción de la semana
The Three-Body Problem: Trapped in a Wave Sandwich
Eduard Kögel, Scenic Architecture Office | 13.04.2026 -

















