'Vivo' Theater
Greifensee, Switzerland
Projektwettbewerb
Wie das Landenberghaus vor der Zerstörung im Alten Zürich- Krieg 1444 wohl ausgesehen und welchem Nutzen es dazumal gedient haben soll ist unklar. Bekannt ist, dass es nach dem Krieg über längere Zeit als Schlossscheune gedient hat. Naheliegend wäre eine murale Fassade, da alle Bauten im Städtli in massiver oder ausgefachter Bauweise gebaut worden sind. Klar ist, dass das Gebäude an der Stadtmauer, neben dem Schloss immer eine wehrhafte Funktion innehatte. Unser Projekt baut auf der Semantik der Wehrhaftigkeit auf. So wie die Ritterrüstung auf dem Haupt des Kriegers, stülpt sich die neue Hülle des Landenberghauses schwer und nur mit spärlichen Öffnungen über den Saal des neuen Landenberghauses.
Die Vorsatzschale, welche beim Einbau von 1969 eingebaut worden ist, wird rückgebaut. Das hinter der Vorsatzschale vermutete romanische Bossenquaderwerk wird offen gelegt und im neuen Raumkonzept über die gesamte Fassadenhöhe sichtbar gemacht. Die bestehenden gekuppelten romanischen Rundbogenfenster sind ein integraler Bestandteil des neuen Raum- und Belichtungskonzeptes.
Die Lasten der Aussenhülle, insbesondere der Dachflächen, werden über die neu eingebauten selbst tragenden Kreuzrippenträger, unabhängig von der historischen Stadtmauer abgeleitet.
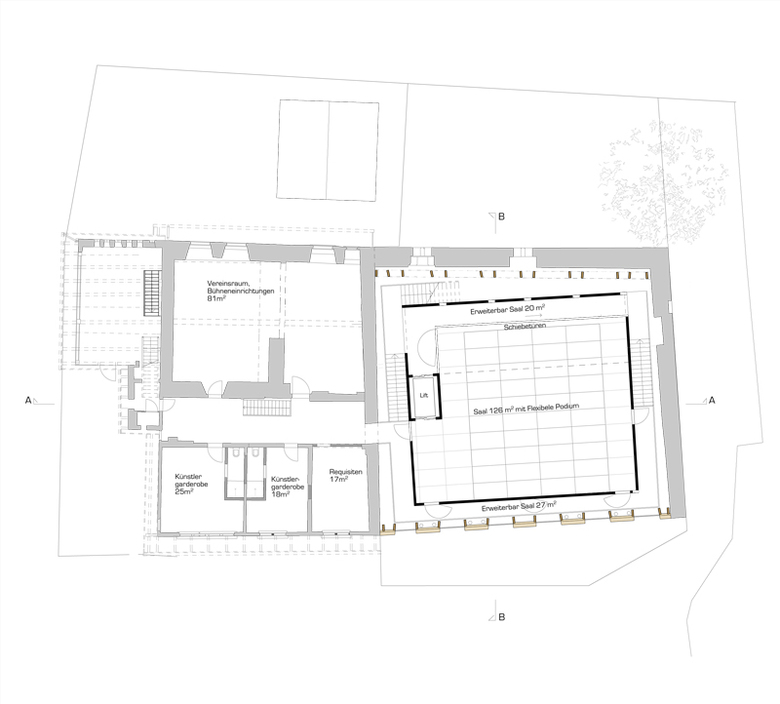
Der neue Saal wird im wahrsten Sinn als Kernstück in einer „Haus im Haus“ Konzeption unter der neuen Gebäudehülle eingebaut. Zenital belichtet und über zwei Seiten Erschlossen steht der neue Saal auf zwei Kuben und ist losgelöst von der primären Kreuzrippenkonstruktion. Die neue Aussenhülle besteht aus Lehm und Lehmziegel.
- Arquitectos
- haefele schmid architekten ag
- Año
- 2013
- Estado del proyecto
- Diseño













