Centro Tecnológico Leitat
C/ Pallars, 185, Barcelona, España
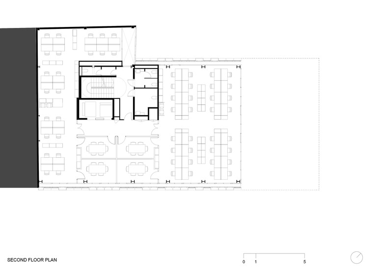
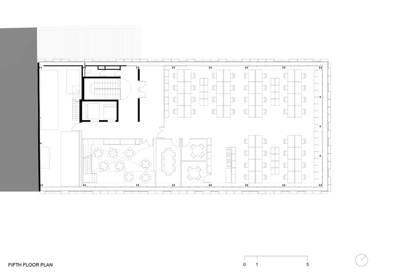
El edificio está destinado a la investigación aplicada, en los ámbitos de la Biotech, la Nanotech y nuevas tecnologías.
En una aproximación al lugar el proyecto pretende activar el centro de la manzana, vinculándolo al espacio libre de la calle y creando un paso, a través del edificio, para poder convertir el espacio público existente en un lugar de encuentro y de estar.
La presencia del edificio pretende enlazar, aunque no de una manera figurativa, con el frente edificado existente creando, de manera abstracta, una continuidad en la textura de la piel de la ciudad tradicional. Proponemos un edificio concebido desde componentes independientes que se pueden producir industrialmente con la finalidad de conseguir un cuerpo edificado muy flexible a los usos posteriores, incluso a su deconstrucción.
La arquitectura ha sido pensada para actuar como interfase o equilibrador entre las condiciones del clima exterior e interior, como una membrana que filtra e intercambia con las condiciones del entorno. La fachada es una envolvente eficiente que da respuesta a los requerimientos físicos de la edificación- estructura, tamización, luz natural, aislamiento y subministro de servicios.
La estructura metálica actúa como una viga en celosía integrada, donde se apoyan los forjados de las plantas compuestas de una única luz que va de fachada a fachada.
- Arquitectos
- picharchitects
- Año
- 2015
- Estado del proyecto
- Construido













