Metropolis Berlin – Haus Mailand
Berlin, Alemania
Metropolis setzt sich zusammen mit 6 Architektenteams an eine Brache am Gleisdreieck Berlin, um ein neues Stück Stadt zu entwickeln.
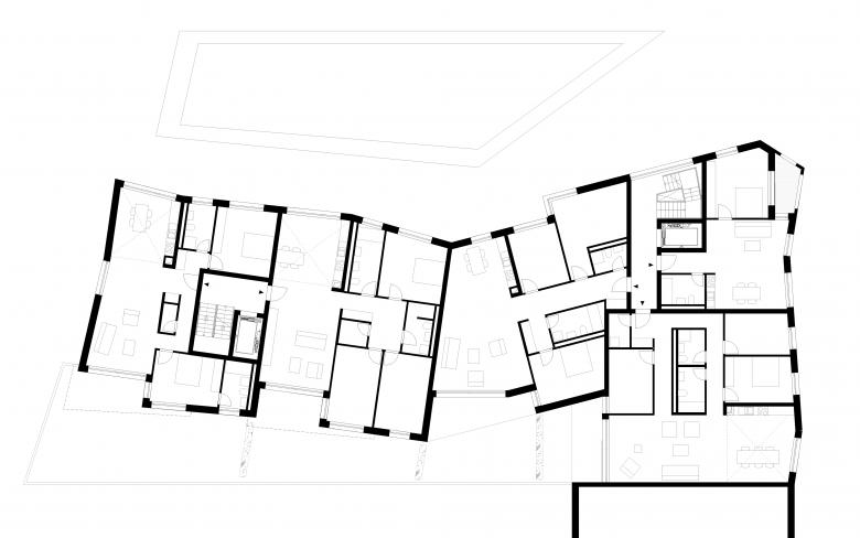
Das Städebauliche Leitbild des Planwerk Innenstadt sah eine geschlossene Straßenrandbebauung mit 3 Höfen vor. In enger Zusammenarbeit mit dem Bezirksamt Mitte wurden die Bebaubarkeit des Grundstücks und die städtebauliche Figur abgestimmt. Das Ziel wurde festgesetzt mit einer parzellierten Bebauung mit insgesamt 12 Gebäuden. Durch Innenhöfe werden raumbildendet Abschlüsse geschaffen. Von der Flottwellstraße entstehen Bezüge zum grünen Innenhof um so einen öffentlichen Zusgang herzustellen. Integration und Kommunikation sind das Ergebnis des städtebaulichen Entwurfs.
Raum als Merkmal. Durch eine kleine Maßnahme in Schnittfiguren des Hauses, entstehen vielfältige Raumwirkungen und individuelle Wohnungen. Auf der Straßenseite, bzw. der Seite zum Hof, hat das Haus jeweils ein Stockwerk weniger als auf der Seite zum Innenhof: Die Wohnungen haben unterschiedliche Ebenen und unterschiedliche Raumhöhen im Wohn- und Essbereich, sie entwickeln sich nicht nur in der Fläche, sondern im Raum. Dieser „Durchwohnraum“ hat jeweils eine Seite zum öffentlichen Raum, Balkone und Loggien sind zum grünen Innenhof hin orientiert. Die kleinen Wohnungen an der Gebäudeecke sind mit „Weitblick“ zum Potsdamer Platz und zur historischen U- Bahn- Brücke geplant
- Arquitectos
- Architektur 6H
- Año
- 2014
- Estado del proyecto
- Construido

















