MK Residence
The visual connection with an exceptional landscape (sea, mountains, land), which also varies as you rise in height, has been a central argument for the design of the house. The house is arranged over two floors (ground floor, upper floor), complemented by a basement section (mainly technical) and a sloped roof (which generates some service space) and terraces.
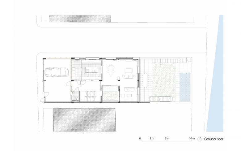
The ground floor, featuring the usual communal spaces, is accessed from the street through a large semi-closed space, intermediate between the public and private realms, serving as a place for exchange, storage, potential parking, etc.
The interior surface of the ground floor completely opens up to the exterior (garden, swimming pool, and initial view of the landscape from the ground); laterally, a courtyard over the party wall allows southern light to enter.
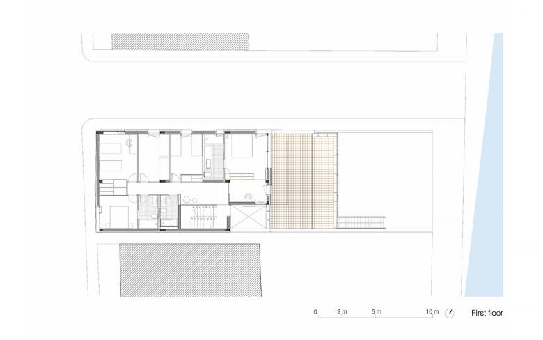
The first floor, housing the bedrooms, also leads to another terrace with a different viewpoint of the landscape. Finally, the roof allows for once again, and now at a higher elevation, complete enjoyment of the grand spectacle of nature.
The house is constructed with load-bearing concrete walls, generous exterior insulation with stucco that relates to the ground on the facades with a variable-height marés plinth. The floor slabs are made of concrete, the windows are aluminum, and the blinds are sliding, either aluminum or wood depending on the case.
The house has three facades. Facing the access street, the scale and proportions connect us with its neighbors. Along the side street, which accommodates the sequence of rooms and small spaces, the composition attempts a dialogue between windows, sliding blinds, and walls. The duality of colors aims to unite windows and sliders into one entity.
Finally, the facade facing the countryside is characterized by large openings and wooden sliding elements, more domestic and tactile, as they will create a continuous boundary between the interior and exterior. The resulting volume is that of a parallelepiped which steps back and recedes towards the vast landscape.
In its simplicity and scale, the project presents a certain complexity of arguments.
- Arquitectos
- Mateo Arquitectura
- Año
- 2023
- Estado del proyecto
- Construido
- Cliente
- Private
- Architects
- Josep Lluís Mateo & Patricia Klein – mateoarquitectura
- Technical architect
- Carme Aguiló Mora
- Structures
- HIMA
- Facilities
- SIE Enginyers
- Photographer
- Marie-Caroline Lucat








