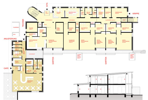
Neubau einer Kindertageseinrichtung

Hamburg, Alemania

Entwurf
Alex Guth

Arquitectos
Alex Guth Architekt
Año
2008
Estado del proyecto
Diseño

Proyectos relacionados 

  • Moos
    playze
  • Reiters Reserve Premium Suiten
    BEHF Architects
  • Erweiterung und Instandsetzung Hallenbad Altstetten
    MIYO Visualisierung
  • Neubau von fünf Einfamilienhäusern
    Bäumlin+John AG
  • The Forge in der 105 Sumner Street in London
    Kiefer Klimatechnik GmbH

Magazine 

Otros proyectos de Alex Guth Architekt 

Gutachterverfahren Masterplan Universitätsklinikum
Hamburg - Eppendorf, Alemania
Ideenwettbewerb Seniorenwohnanlage Kiefhörn
Hamburg - Dulsberg, Alemania
Neubau eines Wohnhauses
Hamburg - Uhlenhorst, Alemania
Architekturolympiade - Familienfreundliches Quartier Chemnitzstraße
Hamburg - Altona, Alemania
Gebäudeensemble Strandweg
Hamburg Blankenese, Alemania