五号住宅室内设计
番禺路, 上海, China
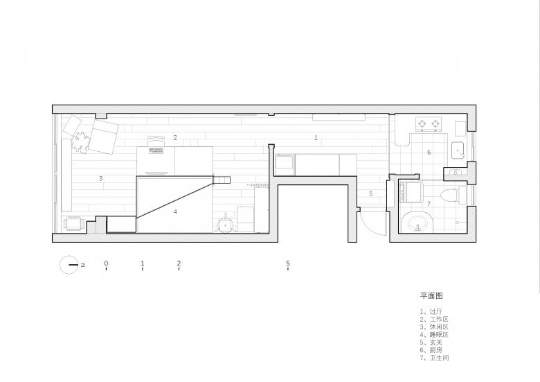
和猫们一起从北京搬至上海一处80年代的居民新村,但居住面积由60平缩至40平 ,为了能延续一直习惯的生活方式,继续尝试以生活方式为基础来引导空间呈现的设计方式,和猫儿们一起适应新的居住空间。
户型是一长条状,从中间入户,玄关和中部饭厅非常昏暗,和两端房间的明亮形成鲜明对比,饭厅区域呈现出消极的空间特性。如何组织和重组现状的房间关系来改善入户的第一感受和如何平衡划分生活的各个功能区,从而提升空间的品质,使得整体生活简单却不无趣。
- Arquitectos
- beyondtime architects
- Año
- 2025
- Estado del proyecto
- Construido























