Pallone House

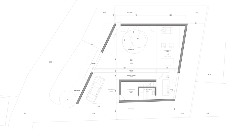
La nuova costruzione si integra volumetricamente con gli edifici esistenti nel contesto. Al contempo, assume un carattere tipologico che permette di soddisfare le esigenze di privacy al quale aspira la committenza e parimenti qualificare lo spazio pubblico della strada verso il quale si rivolge: un muro di cinta perimetrale definisce sia il limite del costruito sia uno spazio esterno protetto e privato (corte interna), permette dei punti di vista precisi dall’interno della casa verso il contesto paesaggistico di pregio circostante, e pone le basi per un arredo urbano puntuale che decora lo spazio stradale.

Dibujo © study model
Dibujo © study model
Arquitectos
Inches Geleta
Estado del proyecto
En construcción

Proyectos relacionados 

  • Moos
    playze
  • Reiters Reserve Premium Suiten
    BEHF Architects
  • Erweiterung und Instandsetzung Hallenbad Altstetten
    MIYO Visualisierung
  • Neubau von fünf Einfamilienhäusern
    Bäumlin+John AG
  • The Forge in der 105 Sumner Street in London
    Kiefer Klimatechnik GmbH

Magazine 

Otros proyectos de Inches Geleta 

Palazzo Pioda
Locarno, Switzerland
Care Home
Losone, Switzerland
MeCrì Museum
Minusio, Switzerland
Desgraz House
Solduno, Switzerland
MeCrì Museum . Pavillion
Minusio, Switzerland