Pflegezentrum «in der Au»
Volketswil, Switzerland
Projektwettbewerb, 1. Rang 2017 und Weiterbearbeitung
Das Alterszentrum befindet sich in Volketswil, am Übergang der Dorfkernzone zur den neueren Wohnquartieren. Der langgestreckte Baukörper nimmt mit seinem gegliederten Volumen Dimensionen von Bauten der Nachbarschaft auf und fügt sich dadurch gut in die Umgebung ein. Die Fächerung des Körpers hilft aber nicht nur die Grösse zu brechen, sondern bildet die Kleinteiligkeit der inneren Organisation gleichzeitig aussen ab.
Der Verbindungsraum zwischen Zentral- und Austrasse bildet das Rückgrat der Anlage. Diese Zone übernimmt die Erschliessung des Pflegezentrums, sie verbindet den Bestand mit dem neuen Haus und soll sich mit einem vielfältigen Angebot zu einem lebendigen Begegnungsraum entwickeln.
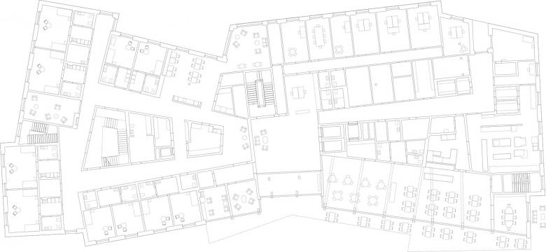
Im Erdgeschoss sind die öffentlichen Nutzungen angeordnet. Der Eingang führt in der Mitte des Gebäudes in eine grosszügige Eingangshalle, wo der Empfang sowie die Erschleissung sofort ersichtlich sind. Das Bistro und ein für die Öffentlichkeit zugängliches Restaurant sind unmittelbar neben der Eingangshalle plaziert. Ebenfalls im Erdgeschoss ist eine Wohngruppe untergebracht, die als geschützter Bereich funktioniert und über einen eigenen Aussenraum verfügt.
Die übrigen Wohnbereiche befinden sich im ersten bis vierten Obergeschoss. Auf jedem Geschoss sind um zwei Kerne mit je einem Lichthof jeweils zwei Nachbarschaften organisiert. Diese bestehen aus je 15 Bewohnerzimmern und den dazugehörigen Gemeinschaftsräumen. Ein zentraler Quartierplatz mit Sitzgelegenheiten, Briefkastenanlagen und direktem Bezug zum Stationsbüro erschliesst die Geschosse. An den Platz grenzen je ein Wohn- und Essraum mit eigener Loggia an. Die Räume in den Kernen dienen der Pflege.
Im fünften Obergeschoss sind Räume von drei verschiedenen Nutzungsgruppen untergebracht. Neben den hellen Personalräumen findet sich hier Physiotherapie- und Gymnastikräume für die Bewohner, sowie die gut belichteten Räume der Wäscherei.
Das Gebäude ist so strukturiert, dass es auch in Zukunft flexibel nutzbar ist. Entsprechend ist die Fassade aus vorfabrizierten Holzelementen nichttragend ausgebildet. Auch aussen ist das Gebäude mit Holz verkleidet, einem Material das bei den volketswiler Häusern traditionellerweise eine Rolle spielte. Diese Materialisierung trägt gleichzeitig zum einladenden und wohnlichen Charakter der Anlage bei.
- Arquitectos
- Bhend & Schlauri Architekten ETH SIA
- Año
- 2017
- Estado del proyecto
- Construido
- Equipo
- Christof Bhend, Barbara Schlauri, Carlos Cuadrado, Monika Dimitrova, Sandra Labe, Nina Stauffer, Claudia Wunderlich, Daniel Friedmann, Bettina Gerhold, Anaïse Vallée
- Landschafsarchitektur
- Lorenz Eugster Landschaftsarchitektur und Städtebau

















