Prinz-Eugen-Park
München, Alemania
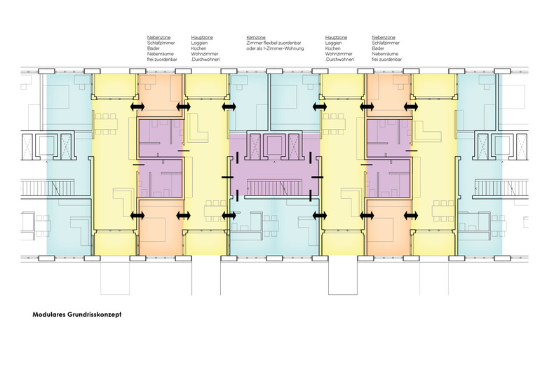
Im Wohnungsbau zeichnet sich derzeit ein Trend ab, die Wohnfläche flexibel zu gestalten (Teilbarkeit, einzelne Räume abzutrennen, zu ergänzen und unabhängig zu erschließen) und die Vorbereitung für das Wohnen in allen Lebensphasen, im Besonderen das altengerechte Wohnen zu aktivieren. Zwei Argumente stützen diese Entwicklung: Zum einen die ökonomische Anforderung mit Wohnfläche äußerst sparsam umzugehen und der dauernden Wohnflächenfortentwicklung effektiv entgegenzuwirken. Zum anderen die demografische Entwicklung der Vereinzelung und die zunehmende Vereinsamung, unabhängig vom Lebensalter, entgegenzutreten.
Im Holz Hybrid Haus werden größtmögliche Energieeffektivität mit maximaler Raumflexibilität verwirklicht. Die positiven Eigen-schaften beider Baustoffe (Holz/Beton) wie Wärmedämmung/ Schallschutz/ Sicherheit werden in der Verbundkonstruktion im Geschoßwohnungsbau optimiert.
Passend zur Holz-Hybrid-Bau-weise wird die Fassade mit einer differenziert gestalteten Holzschalung (massive, dauerhafte Holzqualität) ausgeführt.
- Arquitectos
- Pakula & Fischer Architekten
- Año
- 2019
- Estado del proyecto
- Construido
- Equipo
- Jakub Pakula, Eduard Fischer, Emily Murphy, Felix Dauer, Etrat Hosseini



























