Eisenbahnmuseum
Dr-.C.-Otto-Straße 191, Bochum, Alemania
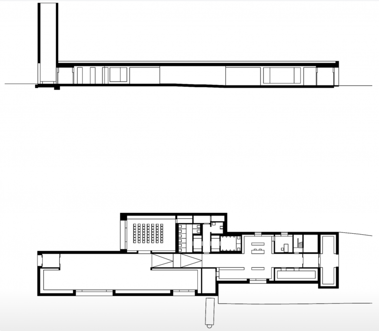
Das 1977 gegründete Eisenbahnmuseum in Bochum-Dahlhausen ist eines der größten Museen seiner Art in Deutschland. Historische Schienenfahrzeuge und denkmalgeschützte Gebäude zeugen hier von der Historie des technischen Fortschritts. Dem Museum verschafft der Neubau eine klare Eingangssituation, die den Besucher in das weiträumige Außengelände leitet. Der eingeschossige Ziegelbau mit der turmartig emporragenden Eingangsfront fügt sich als skulpturaler Körper in das Areal ein. Mit dem vorgelagerten Museumsbahnsteig bildet er eine Figur, deren Dynamik den Schwung der umgebenden Gleisanlagen nachzeichnet. Beton, Stahl und Klinker nehmen das Echo der alten Eisenbahngebäude und des von Schwerindustrie geprägten Ruhrgebiets auf und schreiben es in einer zeitgenössischen Architektur fort. Der monolithisch wirkende Turm dient als Foyer und Landmarke mit Signalfunktion zugleich. Er eröffnet den Blick in den schmalen, langgestreckten Museumsraum, der erste Ausstellungsstücke präsentiert und sich durch ein großes Fenster auf die Gleise öffnet. Roher Sichtbeton verleiht dem Innenraum industriellen Charakter, die sichtbar verlegte Technik betont dabei den linearen Raumfluss. Als Reminiszenz an das Holz alter Bahnschwellen sind alle eingebauten Möbel in Eichenholz gefertigt.
- Arquitectos
- MAX DUDLER
- Año
- 2019
- Estado del proyecto
- Construido
- Cliente
- Stadt Bochum
- Bauzeit
- 2017−2019
- Bauvolumen
- BGF 820m²
- Verfahren
- Wettbewerb 2015, 1. Preis







