Refugium Beelitz
Beelitz, Alemania
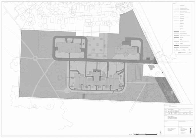
The Beelitz Refugium is located 30km South-West of Berlin, DE. The project is an adapt-refurbishment of a abandoned and historically significant healthcare facility that was used primarily for the treatment of tuberculosis before the invention of anti-biotics. The buildings are serene in their rural seclusion, yet remain close enough to commute easily to Berlin via local train service. The design calls for partitioning the existing spaces into studio/living spaces, while renewing the structure and envelope to modern standards.
- Arquitectos
- playze
- Año
- 2018
- Estado del proyecto
- Construido
- Cliente
- GRR Global Reach Realty GmbH, KW Development GmbH
- Equipo
- Marc Schmit, Pascal Berger, Mengjia He, Ruth von Minckwitz, Rossella Marinozzi, Kathrin Starcke, Henning Ströh, Samantha Bruegger, Will Vachon
















