Wohnsiedlung Riedacker
Zürich, Switzerland
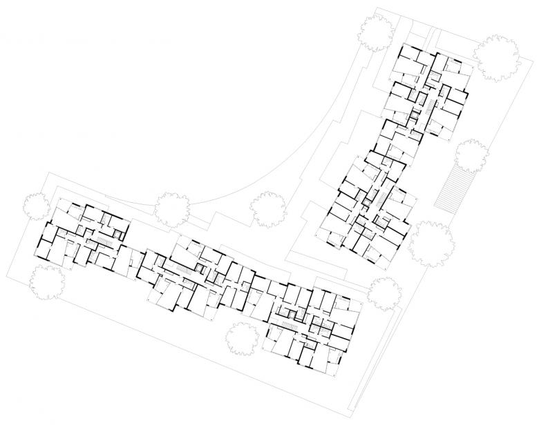
Die zwei grossen Häuser der genossenschaftlichen Wohnsiedlung Riedacker stehen in einem heterogenen Gefüge zwischen der Altwiesen- und Dübendorferstrasse. Hier geht die Gartenstadt von Steiner über in die Ensembles der Spätmoderne. Im unmittelbaren Kontext gibt es Einfamilien- und Gewerbehäuser sowie eine Kirche. Die beiden Häuser bekennen sich zu den gartenstädtischen Qualitäten von Schwamendingen, interpretieren diese aber in einer eigenständigen Figur und in einer neuen Wohnform.
Im Zentrum dieses Wohnens steht ein grosser quadratischer Raum, der jeweils eine Gebäudeecke besetzt. Der Raum wird über zwei diagonal eingestellte, verglaste Membranen in die Küche, den Wohnraum und eine Terrasse geteilt. Wir haben dieses Raumgefüge mit einer Laube verglichen, vom Wohnen auf einer grossen Terrasse gesprochen. In den vier- und fünfgeschossigen Häusern wird das Wohnen am Garten gewissermassen gestapelt.
Die gestaffelten Baukörper werden von einer dünnen Fassadenhaut mit einem feinmaschigen Netz aus Aluminium, Glas und Holz umspannt. Die lichten Innenräume gehen über in dunkle, mineralisch materialisierte Treppenhäuser, die ihrerseits Aussenraumqualitäten aufweisen – die Laube einer jeden Wohnung ist bildhaft gesprochen direkt von aussen zugänglich und dennoch Teil eines inneren Kollektivs.
In Zusammenarbeit mit Baumberger Stegmeier Architektur
Projektwettbewerb 2018, 1. Preis
Ausführung 2018–2023
- Arquitectos
- EMI Architekt*innen
- Año
- 2023
- Estado del proyecto
- Construido
- Cliente
- Baugenossenschaft Glattal
- Equipo
- BS+EMI Architektenpartner














