SBS - Atelier Schönbrunner Str.
Wien, Austria
Durch Margareten weht der Geist der Kreativität. Der 5. Wiener Gemeindebezirk ist eine Melange aus gemeindebaugeprägtem Arbeiterbezirk und urbaner Lifestyle-Szenerie mit kleinen Läden und Hotspots der Gastroszene.
In dieser Atmosphäre ist an der Ecke Schönbrunner Straße/Grohgasse in einem Bürohaus der 70er Jahre ein zeitgemäßes Atelier-Loft entstanden.
Drei Büroeinheiten mit dem restriktiven Flair der 80er Jahre wurden zu einer großen, luftigen Bürofläche. Sie wird vom Licht der umlaufenden Fenster durchflutet und lässt ungewöhnlich viel Gestaltungsspielraum zu.
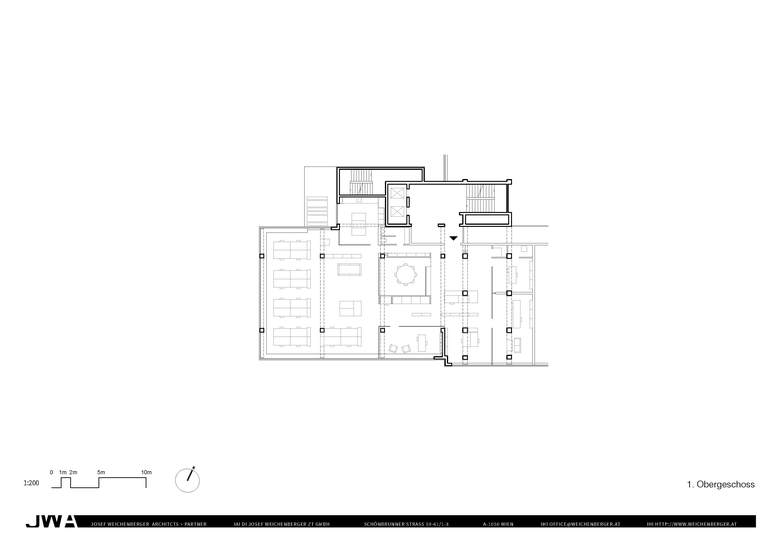
Raumprägend ist der zentral angeordnete Besprechungskubus. Er zoniert die Gesamtfläche in zwei offene Bereiche: einen vorderen Empfangs- und Managementbereich und einen hinteren Projekt-Arbeitsbereich. Drei Räume – zwei Büros und ein Besprechungszimmer – sind durch Glaswände abgetrennt. Der großzügige Projekt-Arbeitsbereich bietet viel Raum für flexible Arbeitsplatzgestaltung. Eine Glaswand ermöglicht den freien Blick auf die Küche mit Übergang zur Terrasse.
Die offene Gesamtstruktur des Büros ermöglicht Blickachsen zwischen Arbeitsplätzen, Besprechungszimmern und Teambereichen. Optisch wurde ein zeitlos moderner Industriestyle in klassischer Farbgestaltung gewählt, der die funktionelle Gestaltung hervorhebt. Im Hauptraum ist die Decke in schwarz, in den abgetrennten Räumen in weiß gehalten. Rohre und Kabelkanäle sind sichtbar, der Boden ist versiegelter Estrich – in den abgeteilten Bereichen weiß beschichtet.
Billardtisch und Terrasse mit Grill laden zum Verweilen nach Feierabend ein. Im Erdgeschoss treffen sich Kreative, Studenten und Menschen jeder Altersklasse im Trendlokal, das seinen Namen dem ehemaligen Firmenstandpunkt der Firma „Werkzeug Huber“ verdankt – ein Ort, der die Verbindung von Arbeit und Kreativität auf den Punkt bringt.
- Arquitectos
- Josef Weichenberger Architects
- Año
- 2018
- Estado del proyecto
- Construido
Proyectos relacionados
Magazine
-
La Construcción de la semana
The Three-Body Problem: Trapped in a Wave Sandwich
Eduard Kögel, Scenic Architecture Office | 13.04.2026 -
-



















