Schottenring 19
Schottenring 19, Wien, Austria
GRÜNDERZEIT FÜR DIE ZUKUNFT RÜSTEN
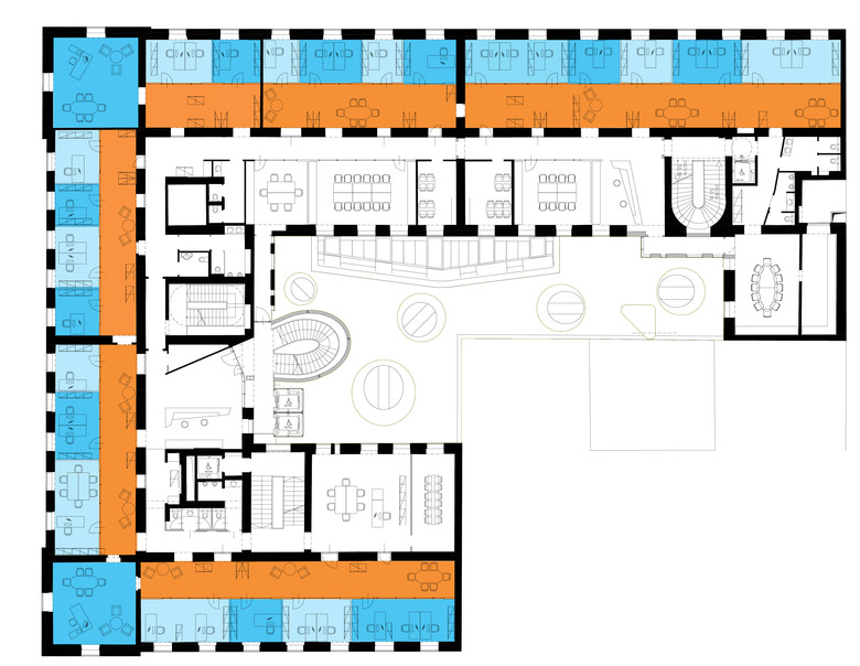
Im wesentlichen geht es bei der Revitalisierung um die Optimierung des hohen Potentials der gründerzeitlichen Architektur an der Wiener Ringstraße. Die Voraussetzungen dafür waren sehr brauchbar. Die offene Struktur des Hauses (errichtet 1878) bot die Möglichkeit nutzungsneutrale und damit wirtschaftliche Flächen zu entwickeln. In Abstimmung mit dem Denkmalschutz wurde die Dachzone erweitert und der Innenhof als Außenraum wieder nutzbar gemacht.
Auch der 2-geschoßige Raum der ehemaligen Frucht- und Lebensmittelbörse wurde mit dem Pendant der neuen Halle am Schottenring wieder hergestellt. Sie dient als Verteiler in die oberen Etagen. Gleichzeitig vermittelt diese Halle wie auch die freigelegten Räume für Büros und Wohnungen jene Großzügigkeit, die das alte Haus mit seiner Interpretation durch die neue Architektur verbindet. RLP Rüdiger Lainer + Partner hat das Ringstraßen-Ensemble als Aufgabe in seiner Gesamtheit betrachtet und für die Zukunft fit gemacht. Vor allem die Aspekte der Nachhaltigkeit (Ästhetik, Nutzungsneutralität, Statik, Energie) standen dabei im Mittelpunkt.
Daher wurden folgende Maßnahmen ergriffen: Schaffung flexibler Flächen für Büro+Wohnen. Statische Ertüchtigung der Trag- und Schubfestigkeit (Nutzlast 200kg/m². Erdbebensicherheit Eurocode 8). Halbierung des Heizwärmebedarfs (Wärmedämmung, Isolierverglasung, Fernwärme+Fernkälte). Ausbau der Dachzone und des Innenhofes. Freilegung der Bausubstanz und Revitalisierung großzügiger Räume. Restaurierung der Fassaden
All diese Maßnahmen tragen dazu bei, dass das Gebäude verwendungsfähig ist und parallel dazu der ökologische Fußabdruck deutlich reduziert wurde. Außerdem zählt das denkmalgeschützte Haus zu jenen wenigen Gebäuden der Gründerzeit, die dem EUROCODE 8 (EU-Erdbebenrichtlinie) entsprechen.
- Arquitectos
- RLP Rüdiger Lainer + Partner
- Año
- 2015
- Estado del proyecto
- Construido










