Schulanlage Oberkirch
Oberkirch, Switzerland
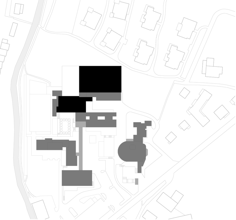
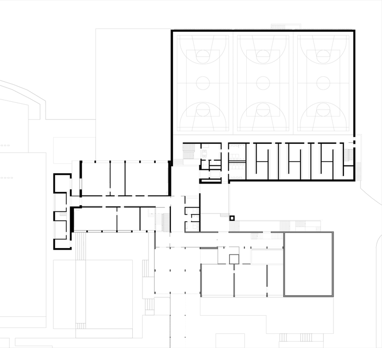
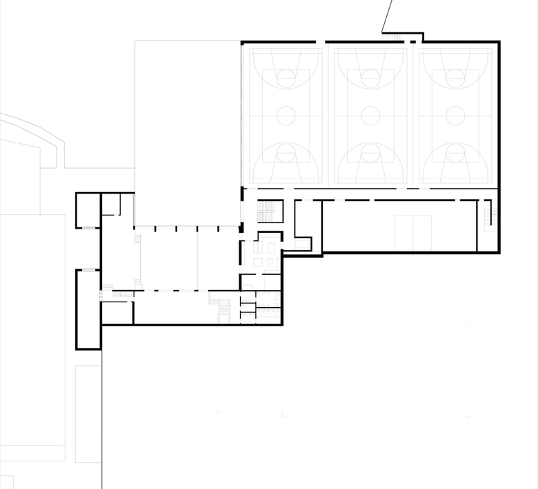
Durch das Andocken der neuen Dreifachsporthalle an den Schulkomplex der 60er Jahre von Architekt Fritz Metzger und den neuen dreigeschossigen Schulhausflügel als Ersatz für die Turnhalle wird die Gesamtanlage zu einer organisatorischen, sowie städtebaulichen und räumlichen Einheit fertiggebaut.
Der Neubau für die Dreifachsporthalle wird im Nordwesten, im Bereich des heutigen Garderobentraktes, direkt an die Schulanlage angesetzt. Das Andocken schafft auf mehreren Ebenen funktionale Vorteile und nutzt Synergien. Die Lage des Neubaus schafft der benachbarten Wohnüberbauung durch seine Ausrichtung den maximal möglichen Freiraum. Durch das Andocken wird die Gesamtanlage zu einer organisatorischen, sowie räumlich kompakten Einheit. Bestehende und neue Schule, Sporthalle und Gemeindesaal werden durch einen gemeinsamen Haupteingang auf kurzen Wegen verbunden und können mit einem einzigen Lift erschlossen werden. Alle Geschosse sind rollstuhlgängig erschlossen, auch das bestehende Schulhaus, welches im 1. und 2. Obergeschoss durch einen Durchgang an die Schulerweiterung angebunden wird. Gemeindesaal und Sporthalle werden auf einer Ebene durch ein weiteres Foyer verbunden. Vor dem Gemeindesaal und der Sporthalle entsteht ein neuer gefasster Hartplatz. Der Gemeindesaal und die Bühne werden nach Bedürfnissen saniert, wobei besonderen Wert auf die Verbesserung der Akustik gelegt wird. Die Garderobe, Küchen- und WC-Anlagen Gemeindesaal, sowie Nebenräume werden durch möglichst geringe bauliche Eingriffe angepasst und vollständig erneuert.
- Arquitectos
- Cometti Truffer Hodel Architekten
- Año
- 2016
- Estado del proyecto
- Construido
- Cliente
- Gemeinde Oberkirch
- Bauleitung
- Blaser Schütz GmbH, Luzern
- Bauingenieur
- Wisst + Partner AG, Rohtenburg
- HLK
- Josef Ottiger+Partner AG, Emmenbrücke
- Elektro
- Network 41 AG, Sursee
- Sanitär
- tib Technik im Bau AG, Luzern
















