Schule Im Isengrind
Im Isengrind 15, Zürich, Switzerland
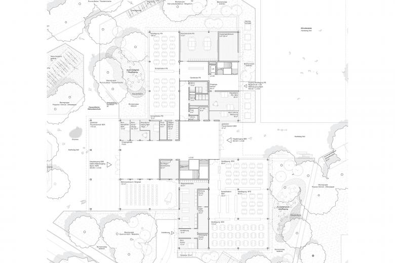
Mit dem Schulhaus «Im Isengrind» entwickelten wir einen neuen Schulhaustyp, der den Städtebau und die moderne Unterrichtsformen ideal vereint: Die Grösse der Lern-Cluster und der städtebauliche Kontext der 70er-Jahre verleihen dem Schulhaus die besondere Kleeblatt artige Form und die konsequente Struktur.
Alle Räume des Unterrichts und Aufenthalts sind in Holzskelettbauweise erstellt. Sie gruppieren sich um die Bewegungsräume aus Beton.
Natürliche und sichtige Materialien mit Bedacht auf die Wiederverwendbarkeit werden konsequent additiv gefügt und bestimmen die räumliche Atmosphäre.
- Arquitectos
- MSA Meletta Strebel Architekten AG
- Año
- 2026
- Estado del proyecto
- En construcción
- Cliente
- Stadt Zürich, Amt für Hochbauten














