Schulhaus Felsberg
Luzern, Switzerland
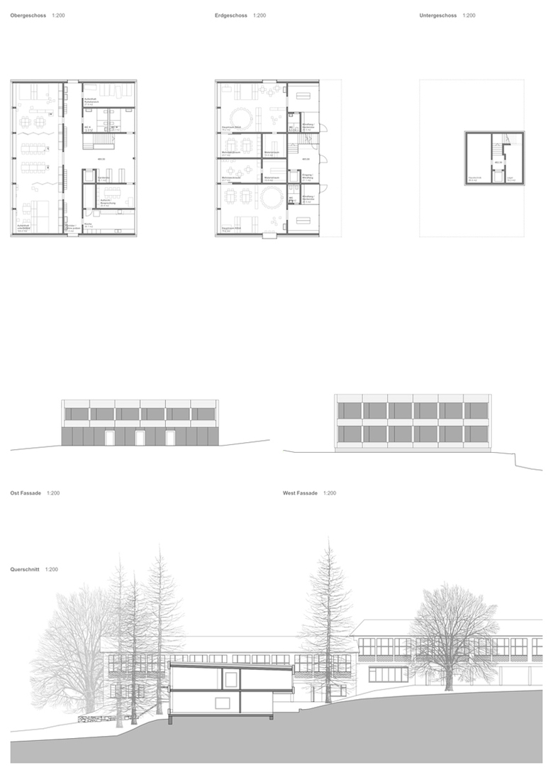
Es galt eine denkmalgeschützte Schulanlage - 1946-48 von Emil Jauch erstellt - mit zwei Kindergarten und einem Hort zu ergänzen.
Die Schulpavillons formen einen Rücken, der sich auf die parkähnliche Landschaft ausrichtet und mit terrassierten Pausenplätze dem Terrainverlauf folgt. Der neue zweigeschossige Minergie-Neubau sitzt als Abschluss der topografischen Staffelung am südöstlichen Rand des Planungperimeters.
Der neue Baukörper ist vollumfänglich in eine abstrakte, gestrichene Holzverkleidung gepackt. Der Farbe sind glitzernde Pigmente beigemischt, welche die Oberfläche bei direktem Sonnenlicht wie auch im Schatten differenziert in Erscheinung treten lassen. Die rahmenlose Verglasung der Eingangsfront ist in die hölzerne Hülle eingeschnitten und markiert die Eingangszone.
Im denkmalgeschützten Schulhaus konzentrieren sich die baulichen Interventionen auf den Einbau von zwei Gruppenräumen, die Erneuerung der WC-Anlagen im Erdgeschoss und kleineren Anpassungen im Lehrerbereich.
In Zusammenarbeit mit Diethelm & Stillmann Architekten
- Arquitectos
- markus jandl_architekten
- Año
- 2010
- Estado del proyecto
- En construcción
- Projektwettbewerb
- auf Einladung
- Gebäudevolumen
- 3'208 m3 (SIA 416)
- Anlagekosten
- BKP 1-9: 13.5 Mio. CHF
- In Zusammenarbeit mit
- Diethelm + Spillmann Architekten Zürich








