Scuola d'infanzia
Via Concordia, Lugano, Switzerland
Con L. Molo
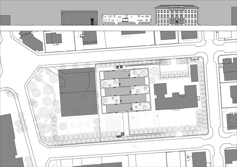
Con il progetto si è cercato di creare delle spazialità a misura di bambino in un contesto racchiuso, protetto e al tempo stesso continuo, inserendosi all’interno di un parco urbano.
Una scuola dell’infanzia é caratterizzata da una grande superficie esterna tipo giardino dove i bambini possono giocare assieme in sicurezza, protetti da un recinto. Il sedime della scuola in concorso è un lotto urbano con diverse funzioni scolastiche e pubbliche per il quartiere. Nell’intento di fare un uso parsimonioso del limitato terreno a disposizione si propone la sovrapposizione dell’edificio contenente le varie funzioni richieste al parco giardino, declinando una continuità spaziale di parco in un contesto urbano. Lo sfasamento delle 5 singole unità produce delle corti alle quali si relaziona l’interno delle aule e che definisce il parco creando parti coperte e parti scoperte.
Una strada sopraelevata dà accesso alle singole unità passando dalle corti al 1° piano. Al 2° piano si trovano le aule delle attività di movimento (4 aule per le 5 unità) e i refettori inseriti in uno spazio continuo ritmato da nicchie che si aprono sulle terrazze / corti. La disposizione genera unità separate all’interno di un insieme.
L’allineamento verso sud dell’edificio sospeso da terra con la scuola e la palestra crea un vasto spazio di carattere urbano, che conferisce un’identità pubblica alle scuole e al quartiere.
La strada interna della scuola dell’infanzia si estende verso il parco antistante creando una passerella, che può diventare luogo d’incontro per bimbi e genitori o tribuna per attività del quartiere. Sotto la passerella, a livello del parco, si colloca il portico della scuola elementare.
La biblioteca dei ragazzi si situa a nord dell’isolato dando una faccia anche al lato nord della scuola che attualmente è un vero e proprio retro; in tal modo, assieme alla nuova costruzione sospesa della scuola dell’infanzia, si completa un lato di un isolato che diventa campus delle scuole.
- Arquitectos
- Könz Architetto
- Año
- 2007
- Estado del proyecto
- En construcción









