Spreeoffice
Mühlenstraße 40, Berlin, Alemania
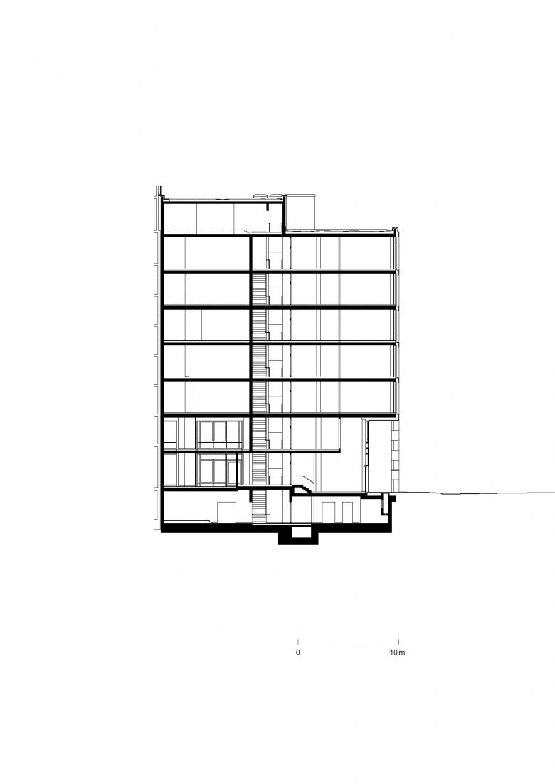
Das neue siebengeschossige Bürohaus Spreeoffice komplettiert ein Baufeld in dem sich rapide entwickelnden Büro- und Dienstleistungsstandort rund um den Berliner Ostbahnhof im Stadtteil Friedrichshain. Das Grundstück ist Teil des Geländes am historischen Postbahnhof und liegt in direkter Nähe zur East-Side-Gallery, dem längsten noch erhaltenen Teilstück der Berliner Mauer sowie unweit der 2008 eingeweihten Mercedes-Benz-Arena. Zusammen mit einem kurz zuvor fertig gestellten Hotelgebäude bildet das Bürogebäude in Kubatur und Materialität eine gestalterische Einheit.
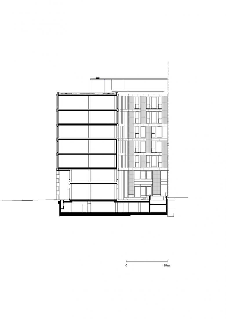
Wie beim benachbarten Hotel besteht die Natursteinfassade des Bürohauses aus glatten Steinflächen aus geschliffenem, teilweise kanneliertem Kohlplatter Muschelkalk und ist in zwei Bereiche gegliedert: Einen zweigeschossigen Sockelbereich vom Erdgeschoss bis zum ersten Obergeschoss und die Fassade der darüber liegenden Regelgeschosse. Auch nimmt die Bürohausfassade die Fassadenstruktur des Hotels wieder auf, das Grundraster aus einander überlagernden Pilastern und Gesimsen wurde beibehalten. Zeichnet sich die Hotelfassade jedoch aufgrund der gewünschten Privatheit der Hotelzimmer durch einen großen Natursteinanteil bei verhältnismäßig schmalen Fenstern aus, so wurden für das Bürogebäude große, raumhohe Glasflächen angeordnet, die die Fassade transparent öffnen und in den Büros für eine lichtdurchflutete Arbeitsumgebung sorgen sowie straßenseitig einen Panoramablick über die Spree und das Kreuzberger Ufer ermöglichen.
Der Arkadenbereich besteht aus einer zweigeschossigen Aluminium-Glasfassade, die ebenfalls mit der des Hotels identisch ist. Vor der Glasfassade wird die zweigeschossige Kolonnade mit Natursteinpfeilern entlang der Straßenseiten weitergeführt. Diese Kolonnade bildet sich auf der Hofseite in Form von Natursteinpilastern zwischen den Glasfeldern ab. Von der Kolonnade an der Mühlenstraße wird die Empfangslobby erschlossen, bei der ein zweigeschossiger Luftraum für eine großzügige Raumhöhe sorgt.
Das Gebäude ist sowohl für die Nutzung durch einen Gesamtnutzer als auch durch mehrere Einzelnutzer konzipiert. Die Büroflächen bieten durch unterzugslose Decken, weitgehende Stützenfreiheit, ein rationales Fassadenraster von 1,35 m sowie ein anpassungsfähiges Technik-Konzept maximale Flexibilität in der Raumaufteilung. Somit können sowohl klassische Zellen- als auch Großraumbüros realisiert werden.
Im Untergeschoß befindet sich eine Tiefgarage mit 11 PKW-Stellplätzen, 44 Fahrradstellplätzen sowie sieben Doppelladesäulen für E-Fahrzeuge.
- Arquitectos
- TCHOBAN VOSS Architekten
- Año
- 2019
- Estado del proyecto
- Construido
- Cliente
- NDC Projektentwicklung GmbH, Berlin
- Equipo
- Architekt: Sergei Tchoban TCHOBAN VOSS Architekten, Projektpartner: Philipp Bauer, Projektleiter: Anissa Landgraf (LP 2-4); Dirk Kollendt (LP 5), Mitarbeiter: Hanna Bulanava
- Ausbauplanung
- WEP – Effinger Partner Architekten BDA, Berlin
- Innenarchitektur
- Andreas Weber Architektur und Design, München
- Tragwerksplanung
- Dr.-Ing. Pelle Ingenieurgesellschaft mbH, Berlin
- Heizung, Klima, Lüftung, Sanitär
- IGS / Ingenieur-Gruppe TGA Szameitat, Falkensee
- Elektro
- enuTEC - Energietechnik & Umweltmanagement GmbH, Oranienburg
- Brandschutzkonzept
- hhpberlin Ingenieure für Brandschutz GmbH, Berlin
- Generalunternehmer
- BAM Deutschland AG, Standort Berlin
- Alu-Fassade
- Baginski Metallbau, Berlin
- Ausführung Natursteinfassade
- Stone Alliance GmbH, Wetzlar
- Lieferung Naturstein
- TRACO Deutsche Travertin Werke GmbH, Bad Langensalza
- Sonnenschutz
- Warema Group, Standort Berlin
- Fenster
- Müller Holzbauarbeiten GmbH, Essen

















