Su House
Stuttgart, Alemania
Auf einem Grundstück direkt am Waldrand, in einem Villenviertel im Stuttgarter Süden, entstand eine bis ins kleinste Detail durchgeplante Villa für eine Kunstliebhaberin und deren Familie.
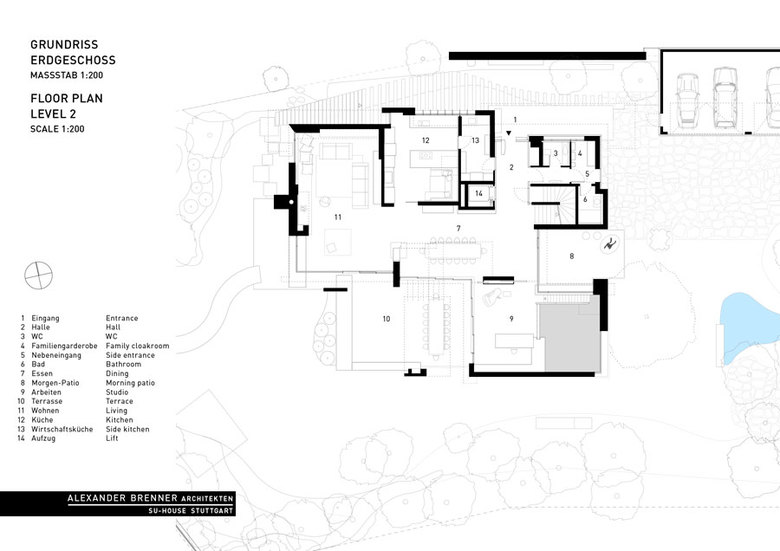
Von der Auf einem Grundstück direkt am Waldrand, in einem Villenviertel im Stuttgarter Süden, entstand eine bis ins kleinste Detail durchgeplante Villa für eine Kunstliebhaberin und deren Familie. Von der Piazza am Grundstückzugang gelangt man, geleitet vom silberglänzenden Garagenkubus, vorbei am oberen Garten mit dem Teich und „Morgenpatio“ mit seinem Kieselsteinboden und der Skulptur der tanzenden Hasen, zum Hauszugang an der Nordseite.
Im Anschluss an die Eingangshalle steht der grosse Esstisch unter einem zweigeschossigen, durch ein Oberlicht erhellten Luftraum.
Über Eck öffnet sich die raumhohe Verglasung, die sich beiseite schieben lässt, zur Terrasse, so dass in den Sommermonaten der Innenraum mit der bedachten Aussenterrasse Eins wird. Die Küche wurde als Wohnküche mit einer Eckbank gestaltet. Sie funktioniert sowohl als abgeschlossener Raum, als auch aufgrund einer breiten Schiebetüre als Teil des Ganzen.
Ein grosser, breiter, offener Kamin leitet in den Wohnbereich, der als gefasster, intimerer Raumbereich geplant wurde. Über ein rückwärtiges raumbreites Oberlicht fällt Licht auf die Bilder- und Skulpturenwand.
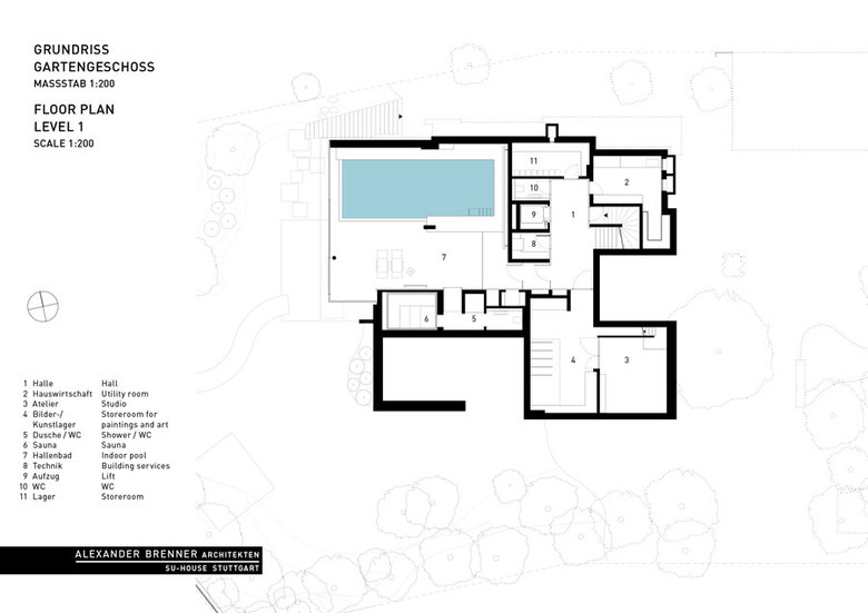
Vom südlichen Büro- und Arbeitsbereich führt eine schmale Treppenskulptur zum Atelier. Dieser zweigeschossige, fast sakrale Bereich dient hauptsächlich der Präsentation der Kunst, deren Sammeln eine Leidenschaft der Bauherrschaft ist. Direkt im Anschluss ist das Kunst-Magazin. Der grösste Teil des Gartengeschosses ist der Pool- und Spabereich.
Der Teil der Sauna und des Dampfbades ist introvertiert und von der Decke bis zum Boden in warmen, rot-goldenen Tönen gehalten. Die Schwimmhalle hingegen öffnet sich raumhoch verglast zum unteren, im Südwesten gelegenen Gartenteil.
Im Obergeschoss sind um die Galerie alle Schlafräume und die zugehörigen Bäder angeordnet. Der Haupt-Schlafraum mit offenem Kamin, Ankleide und Bad ist als zusammenhängender „Privatbereich“ ausgeführt. Die vorgelagerte überdachte Dachterrasse bietet einen weiten Blick nach Südwesten.
Noch atemberaubender ist der Rundumblick von der darüberliegenden Dachterrasse.
Grundstücksfläche
2.125 m²
Wohnfläche
640 m²
Nutzfläche
330 m²
Fotografie
Zooey Braun
- Arquitectos
- Alexander Brenner Architekten
- Año
- 2012
- Estado del proyecto
- Construido

























