The Bunker
Studio City, California, USA
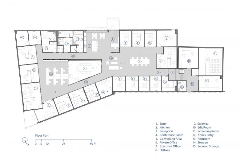
The original Hanna-Barbera Productions’ studio is the site for this adaptive-reuse transformation for a rising film production company’s headquarters. Affectionately called “The Bunker” by Hanna-Barbera employees for the windowless treatment of the one-story building, the company moved into the Cahuenga Boulevard property in 1960 while the Flinstones was beginning production. Our client, expressing great respect to the original tenant, desired an environment where ideas could be easily
exchanged, one that fostered a culture of open and egalitarian team collaboration, and a solution that accommodated traditional private office and essential creative content workspaces. The primary challenge was converting the hermetically-sealed former animation studio into a naturally illuminated, professional, yet domestically scaled office environment, while addressing the technical challenges of a
forward-thinking film production facility.
Paying homage to the project’s history, our solution opted to re-use the entirety of the existing structure. We exposed the roof trusses and the masonry block walls within the communal spaces, while introducing sound isolated private offices around the perimeter. Within the communal spaces, we created numerous co-working and socialization zones, expanding the “domestic” nature of the space.
Expanding the boundaries of design, both technically and aesthetically, our space planning, material selection, and architectural detailing introduces a refined, yet domestic scale to the office environment. Under the current Covid CDC Guidelines, the project will be fitted to provide a safe and socially-distanced working environment for the staff.
Exemplifying sustainable design excellence, the preservation of “The Bunker”, upgrades to the building’s environmental systems and insulation, the introduction of natural light through the ceiling slots, and the selection of sustainably produced materials serves as a model for the new no carbon architecture required to address our pending environmental challenges.
- Arquitectos
- Aaron Neubert Architects
- Año
- 2022
- Estado del proyecto
- Construido
- Equipo
- Architect: ANX/Aaron Neubert Architects - (Aaron Neubert | Jeremy Limsenben | Jina Seo | Shuxin Wu | Tak Szeto | Sarah Stevenson), Landscape Design: LPO and ANX/Aaron Neubert Architects, Structural Engineer: Craig Phillips Engineering and Design, MEP Engineer: Hariton Engineering, General Contractor: Reaume Richardson, Photography: Paul Vu / HANA


















