Stadthaus im 18.
Wien, Austria
Ja, das möchste: Eine Villa im Grünen mit großer Terrasse, vorn die Ostsee, hinten die Friedrichsstraße; mit schöner Aussicht, ländlich-mondän, vom Badezimmer ist die Zugspitze zu sehen – aber abends zum Kino hast dus nicht weit. Das Ganze schlicht, voller Bescheidenheit...
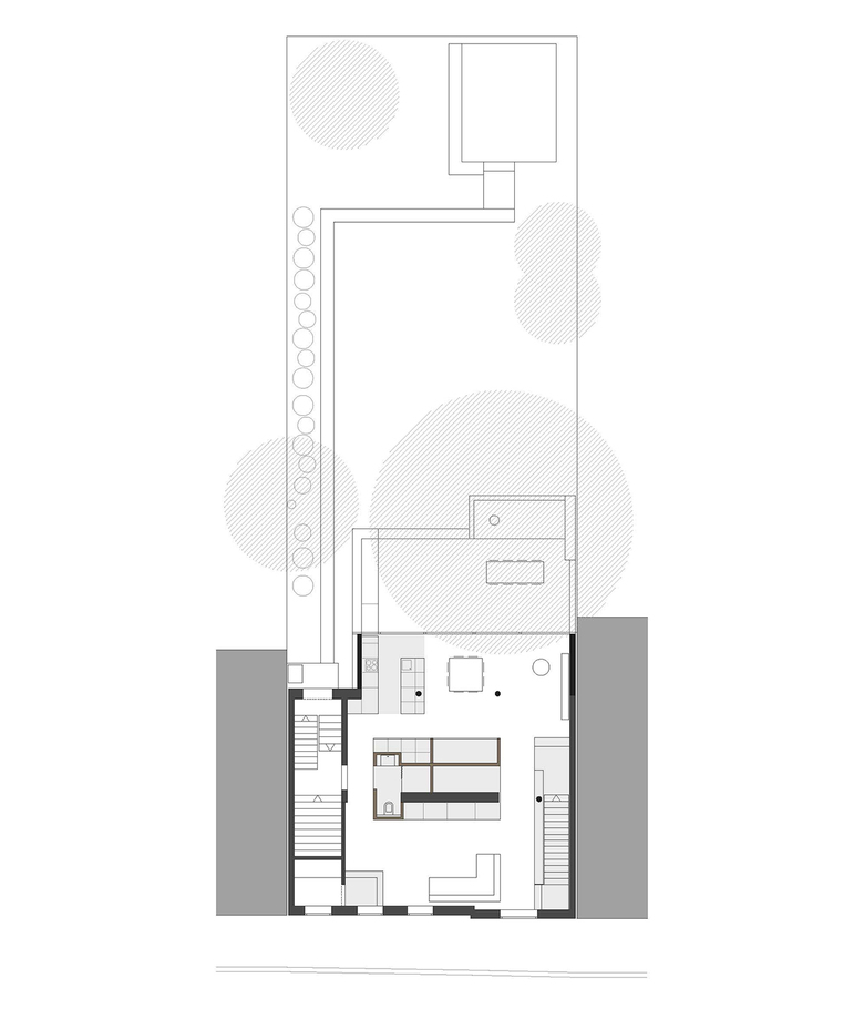
Und so weiter beschreibt Kurt Tucholsky schon Ende der 1920er Jahre die Sehnsucht nach dem Ideal zwischen Natur und Stadt. Und an dieser Sehnsucht nach dem scheinbar unmöglichen, nämlich städtischer Dichte und Vielfalt, kurzen Wegen und trotzdem Ruhe und einer Oase der Erholung hat sich bis heute wenig geändert. Was liegt also näher als nach einem Stadthaus zu suchen und dieses für eine ganze Familie umzubauen? So geschehen in der Hockegasse im 18. Wiener Bezirk. Ein unprätentiöses Haus bot die Freiheit (ohne Scheu vor historisch wertvoller Substanz) so einzugreifen wie gewünscht.
Die Garage wird zum Haupteingang. Eine Treppe zieht direkt in die nun offene Garten- und Wohnebene. Einen Stock darüber wird geschlafen und gearbeitet. Dank großzügigen Glasschiebeelementen gehen Garten und Küche unmittelbar ineinander über. Hier ist eine bestehende Magnolie ein Glücksfall. Das ehemalige Treppenhaus wurde belassen für zukünftige Szenarien. Jede Ebene ist daher leicht anders zu nutzen. Zurzeit ist die oberste Ebene vermietet. Wunsch der Bauherren war eine qualitätsvolle Architektur sowie möglichst ökologisch und nachhaltig zu bauen. Dämmmaterial aus mineralischen und organischen Stoffen, Solarpaneele am Dach, bauteilaktivierte Betondecken und ein Heizkachelofen bedeuten praktisch kein Heizen mit fossilen Energieträgern. Aus Lehm verputzte Wände, kein Silikon und keine unnötigen Verkabelungen sind im Haus normal. Neue Holz-Kastenfenster kombinieren gründerzeitliche Erscheinung nach Außen mit moderner Hochleistung nach Innen. In Summe stellt das Haus ein ökologisches Hightech-Produkt mit Niedrigstenergiestandard mitten in der Stadt dar.
- Arquitectos
- Bogenfeld Architektur
- Año
- 2013
- Estado del proyecto
- Construido













