Umbau Büroraum Greifengasse
Greifengasse 19, Basel, Switzerland
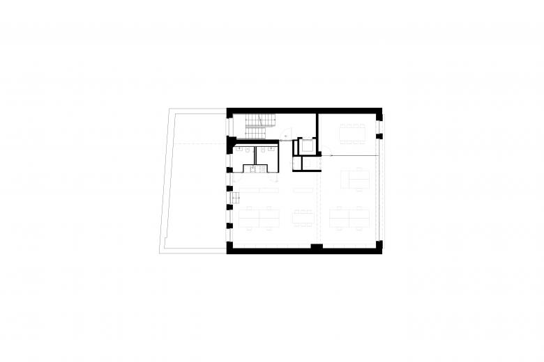
Der ehemalige Coiffeur Salon im Obergeschoss der Greifengasse 19 sollte als Büroraum umgenutzt werden.
Das Projekt umfasst die Rückbauarbeiten, der Ersatz der Holzmetallfenster und Rafflamellenstoren, die Ergänzung der Elektroinstallationen, die Erneuerung der Zugnagstüre sowie die Erstellung der Nasszellen, Einbauküche und des Besprechungsraums.
Aus Brandschutzgründen musste eine Brandschutzdecke eingebaut werden, welche mit einer darunterliegenden Akustik-Lochdecke kombiniert ist.
Über die bestehenden Plattenbeläge konnte ein fugenloser, geschliffener Fliesbelag eingebaut werden.
- Arquitectos
- atelier fausch gmbh
- Año
- 2023
- Estado del proyecto
- Construido
- Cliente
- Zedrima AG
- g2y baumanagement gmbh
- Baumanagement





