Umbau Schopf Sterneggweg

Meilen (ZH), Switzerland
Bestand Gartenfassade 2019
Foto © nik biedermann architekt

Charakteristisch für das unmittelbare Umfeld der Scheune
am Sterneggweg sind die unzähligen zusammengewach- senen Gebäudekonglomerate. Entstanden ist ein verwin- kelter kleineiliger Mikrokosmos im Schatten des stattlich- en Hauses Bau, der von unterschiedlichen Haustypen und deren Nutzungen geprägt ist. Massive und hölzerne Bauweisen in unterschiedlicher Ausprägung wechseln sich auf engem Raum ab und geben dem öffentlichen Raum seine eigentümliche Identität. Die Gebäude lenken den Weg, der zwischenzeitlich zu einem respektablen Platz anwächst, bevor er sich wieder zwischen ihnen hin- durchwindet. Angelegte Gärten finden sich zahlreich in den Räumen zwischen den Gebäuden - ein Kleinod hinter der Kirche. Dabei nimmt die unmittelbar an den gepfläs- terten Platz gesetzte Scheune eine bedeutende Stellung ein.

Die Ausdruckskraft des bizarren Scheunenkonglomerats soll hinsichtlich der Konstruktion und der Materialisierung möglichst beibehalten werden. Dies betrifft im Wesentli- chen die massiven Bruchsteinmauern, das hölzerne Tragwerk und den Dachstuhl mit der Ziegeleindeckung.
Im Inneren soll mit gezielten Schwerpunkten in den Haupträumen die charakteristische Fachwerkbauweise der Scheune und die Durchlässigkeit der Fassade in den neu entstehenden Wohnräumen angemessen in Erinne- rung bleiben.

Die angestrebte Transformation der Scheune hin zu ei- nem Wohnhaus geschieht möglichst im Einklang mit der vorgefundenen Identität. Als wesentliches Merkmal wird die Fassade dem Bestand entsprechend mit vertikal ge- richteten Tannenbrettern mit deutlichen Fugen neu einge- kleidet. Der Wandel zum Wohnhaus zeichnet sich in der Sublimierung der grösstenteils vor Witterung geschützten Wandverkleidung aus, in dem sich die vertikale Brettstruk- tur bei den Öffnungen verfeinert, verdichtet und durch- lässiger wird. Entsprechend der Bedeutung und des von innen gewollten Öffnungsverhaltens wird die Charakte- ristik der Durchlässigkeit auf einfachste Weise motivisch variiert. Filigran gegliederte Holzstab-Rahmen sind in Öffnungsfutter und Friese aus eingelegt, sind ausstellbar und übernehmen die Aufgabe von herkömmlichen Jalou- sien. Damit wird einerseits die Kontinuität der hölzernen Verkleidung weitergeführt, andererseits kann das Bedürf- nis nach regulierter Transparenz von innen wahlweise manipuliert werden. Auch die ehemaligen Tore werden an gleicher Stelle in neuer Funktion in dieses Spiel einge- bunden. So tragen Holzstabelemente und Tore mit den entlehnten und entfremdeten Perforationsmotiven zu ei- nem dezidiert kultivierten Wohnen bei und erinnern ganz nebenbei an die rurale Herkunft des Gehäuses.

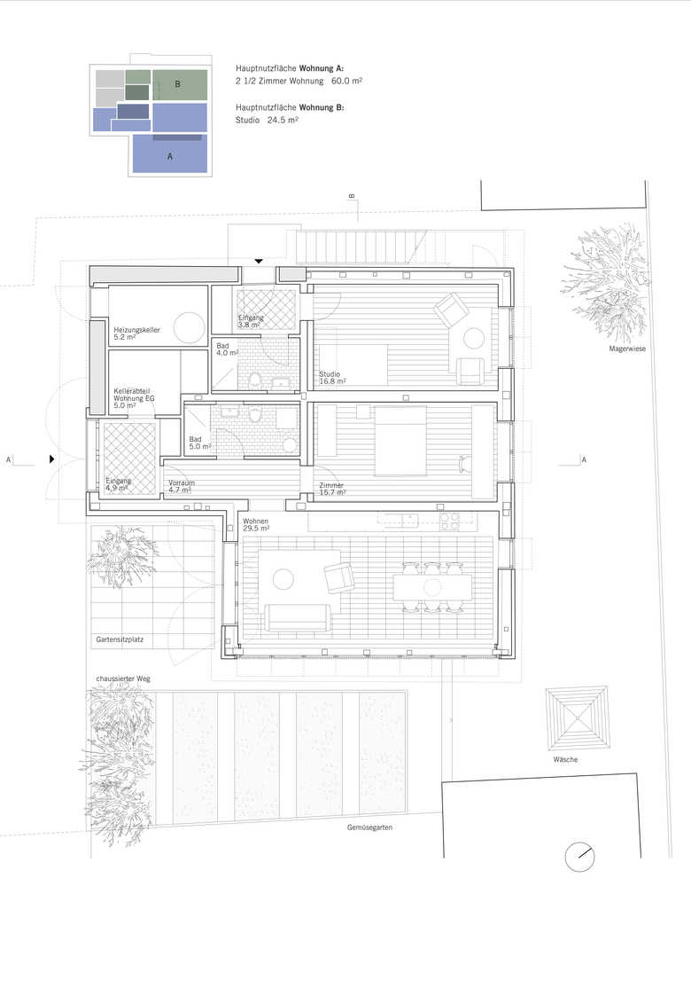
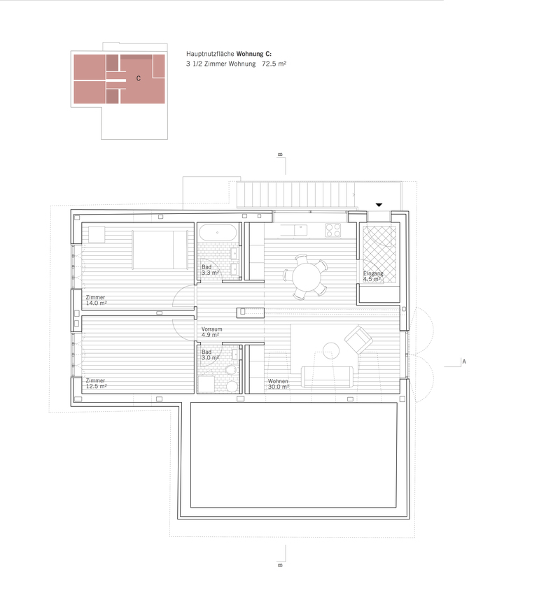
Die Setzung der Wohnungen und deren Raumbildung folgt pragmatisch der Logik der chronologisch gewach- senen Gebäudeteile an der Scheune, die buchstäblich ineinander verstrickt sind. Dabei bestimmen die noch vorhandenen Kammerschalen des Mauerwerks und die Ausrichtung der vorgefundenen Tragstruktur in nahelie- gender Weise eine effiziente Raumbildung, indem diese mit wenig Ausnahme deckungsgleich gebracht werden. Die Wohnungen sind grundsätzlich geschossweise in die Gebäudeteile eingefügt. Jede Wohnung erhält entspre- chend ihrer Hierarchie und Lage eine besondere räum- liche Attraktion. So orientiert sich das grosszügige Studio dem Gassenraum abgewandt als kleinste Einheit zum stillen Garten, die 2 1/2 Zimmer Wohnung öffnet sich mit dem Wohnraum in die angrenzende, hohe Wagenhalle und die 3 1/2 Zimmer Wohnung entwickelt sich abhängig vom Tragwerk dosiert in den Dachraum. Die Erschlie- ssung der drei Wohnungen erfolgt einzeln und unabhän- gig voneinander direkt vom weitverzweigten Gassen- raum. So erhält jede Wohnung eine individuelle Adresse in differenzierter Form, so wie sie am Sterneggweg - einem weitverzweigten Kleinod im Schatten der Kirche - zahlreich anzutreffen ist. Gleichzeitig kann vermieden werden, dass die knapp vorhandene Hauptnutzfläche nicht für die Erschliessung, sondern zugunsten von wert- vollem Wohnraum gesichert wird.

Transformation zum Wohnhaus
Visualización © Studio 12
Wohnraum mit Ausblick zum Garten
Visualización © Studio 12
Kleinod mit kleinmasstäblichen Gebäudekonglomeraten säumen den Sterneggweg
Dibujo © nik biedermann architekt
Grundriss Obergeschoss
Dibujo © nik biedermann architekt
Grundriss Erdgeschoss
Dibujo © nik biedermann architekt
Gebäudeschnitte
Dibujo © nik biedermann architekt
Typologische Referenz, Scheune im Weiler Burg ob Meilen
Foto © nik biedermann architekt
Arquitectos
nik biedermann architekten gmbh
Año
2019
Estado del proyecto
Construido
Programm
Umnutzung in 3 Wohnungen
Auslober
Evangelisch -reformierte Kirchgemeinde Meilen
Architekt
nik biedermann architekt
Rauminhalt Sia 416
860m3
Gebäudekosten
BKP1-5, ca. 1.3Mio.
Planerwahlverfahren
2019, 1. Rang

Proyectos relacionados 

  • Moos
    playze
  • Reiters Reserve Premium Suiten
    BEHF Architects
  • Erweiterung und Instandsetzung Hallenbad Altstetten
    MIYO Visualisierung
  • Neubau von fünf Einfamilienhäusern
    Bäumlin+John AG
  • The Forge in der 105 Sumner Street in London
    Kiefer Klimatechnik GmbH

Magazine 

Otros proyectos de nik biedermann architekten gmbh 

Instandsetzung / Umnutzung Städtische Poliklinik
Zürich, Switzerland
Amtshaus III Teilinstandsetzung
Zürich, Switzerland
Machbarkeitsstudie Villa "Guggenbühl"
Herrliberg (ZH), Switzerland
Umnutzung "Haus zur Sul"
Zürich (ZH), Switzerland
Umbau und Instandsetzung Schulanlage Gubel A
Zürich (ZH), Switzerland