Umbau "Zum Hemmensberg"

Bodenackerstrasse, Alten, Switzerland
Foto © Björn Siegrist

Städtebau
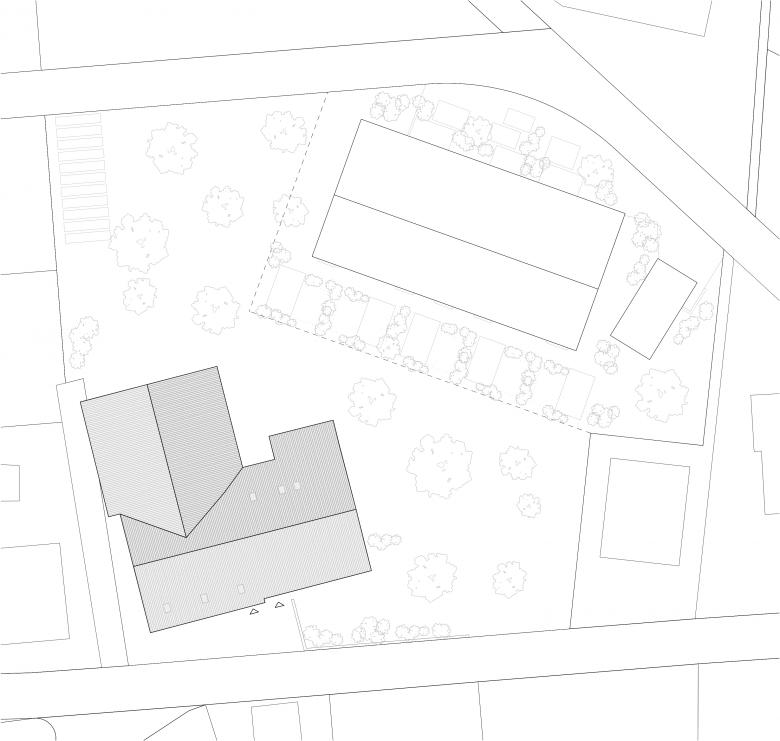
Das Bauernhaus von 1810 und rückwärtigem Scheunenanbau von 1912 ist auf kommunaler Ebene geschützt und prägt das Ortsbild des Dorfes massgebend.

Typologie
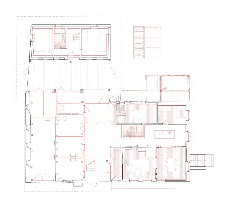
Die neuen Wohnungen im Ökonomieteil und Anbau wurden im Haus-in-Haus-Prinzip innerhalb der bestehenden Volumetrie integriert. Die beiden grosszügigen Tenne im vorderen und hinteren Gebäudeteil dienen als gemeinschaftliche Erschliessung, Begegnungszone und Stauraum.

Innenraum
Die Bestandswohnungen wurden unter denkmalpflegerischen Auflagen saniert. Kachelöfen, Täfer und originale Türen blieben erhalten. Helle Materialien, reduzierte Einbauten und eine sorgfältige Lichtführung bringen Grosszügigkeit in die tiefen Grundrisse mit niedrigen Decken. Die neuen Wohnungen zeichnen sich durch individuelle Grundrisslösungen aus – darunter eine kompakte Maisonette über drei Geschosse, Galerien unter dem Dach und ein innenliegender Balkon im rückwärtigen Tenn. Alle Einheiten sind schlicht ausgebaut mit Anhydritböden, Fichtenholz und offenen Raumbezügen.

Energie
Der Umbau erfolgte überwiegend in Holzbauweise mit minimalem Betoneinsatz. Dank neuer Fenster, Innendämmung mit Isofloc, Wärmepumpenheizung und -boiler ist das historische Bauernhaus ressourcenschonend im Betrieb.

Umgebung
Das Grundstück wurde mit einer artenreichen Blumenwiese, Obst- und Nussbäumen sowie heimischen Stauden naturnah gestaltet. Verschiedene Sitzplätze und Spielgeräte rund ums Haus werden gemeinschaftlich genutzt.

Foto © Björn Siegrist
Foto © Björn Siegrist
Foto © Björn Siegrist
Foto © Björn Siegrist
Foto © Björn Siegrist
Foto © Björn Siegrist
Foto © Björn Siegrist
Foto © Björn Siegrist
Foto © Björn Siegrist
Foto © Björn Siegrist
Foto © Björn Siegrist
Foto © Björn Siegrist
Foto © Björn Siegrist
Schwarzplan
Dibujo © Neustadt Architekten
Situation
Dibujo © Neustadt Architekten
Untergeschoss
Dibujo © Neustadt Architekten
Erdgeschoss
Dibujo © Neustadt Architekten
Obergeschoss
Dibujo © Neustadt Architekten
1. Dachgeschoss
Dibujo © Neustadt Architekten
2. Dachgeschoss
Dibujo © Neustadt Architekten
Querschnitt
Dibujo © Neustadt Architekten
Längsschnitt
Dibujo © Neustadt Architekten
Arquitectos
Neustadt Architekten GmbH
Año
2023
Estado del proyecto
Construido
Bauleitung
TriBau AG
Bauingenieur
Werner Locher
Holzbauingenieur
IHT Ingenieurbüro für Holz + Technik AG
Bauphysik
Mäder Bauphysik GmbH
Brandschutz
inexo
Haustechnikplanung
3-Plan Haustechnik AG
Elektroplanung
Wick Engineering AG
Fotografie (Aussen)
Björn Siegrist
Fotografie (Innen)
Module Plus

Proyectos relacionados 

  • Moos
    playze
  • Reiters Reserve Premium Suiten
    BEHF Architects
  • Erweiterung und Instandsetzung Hallenbad Altstetten
    MIYO Visualisierung
  • Neubau von fünf Einfamilienhäusern
    Bäumlin+John AG
  • The Forge in der 105 Sumner Street in London
    Kiefer Klimatechnik GmbH

Magazine 

Otros proyectos de Neustadt Architekten GmbH 

Siedlung Hohberg
Schaffhausen, Switzerland
Scheune Taa
Winterthur, Switzerland
Siedlung Rehgüetli
Schaffhausen, Switzerland
Wohnüberbauung Schweizersbild
Schaffhausen, Switzerland
Neubau "Zum Hemmensberg"
Alten, Switzerland