VoltAir
Voltairestrasse , Berlin, Alemania
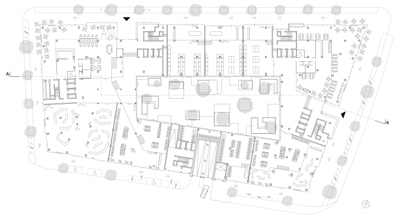
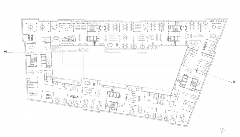
VoltAir ist ein pulsierender Stadtbaustein für neue Bürowelten am Alexanderplatz im Zentrum Berlins.Der Entwurf mit seinen markanten gestapelten Kuben ist 2014 aus einem eingeladenen Architekturwettbewerb für eine Shoppingmall mit Hotel hervorgegangen.Das Erscheinungsbild des Gebäudes wird durch die gestapelten, zweigeschossigen Glaskuben bestimmt.Der bereits im Wettbewerbsentwurf definierte, horizontale Riss zwischen den Fassadenboxen auf Höhe des angrenzenden S-Bahn-Viaduktes verbindet das Gebäude städtebaulich mit diesem. Lichte Raumhöhen von 3 Metern, Gebäudetiefen von bis zu 24m, Sichtbeton und sichtbare Technikinstallationen verleihen dem Gebäude im Inneren einen Loftcharakter und spiegeln kommunikative und soziale Vernetzung wider. Die Grundrisse lassen sich horizontal teilen und vertikal verbinden, so dass die Mietflächen flexibel an Nutzerwünsche angepasst werden können.
Durch die ganzheitliche Gestaltung und die Sichtbarkeit im Stadtraum an einer der urbansten Stellen Berlins wurde das VoltAir zum neue Standort für innovative Firmen wie N26, Biontech, TomTom, und Seven Senders.
- Arquitectos
- J.MAYER.H und Partner, Architekten mbB
- Año
- 2023
- Estado del proyecto
- Construido
- Cliente
- Joint Venture von ABG Real Estate Group und Felix Gädeke
- Equipo
- Jürgen Mayer H., Hans Schneider, Marcus Blum, Paul Angelier, Lars Becker, Christoph Emenlauer, Antje Kalus, Mael Kang, Simon Kassner, Elina Kolarova, Mehrdad Mashaie, Julien Sarale, Jonas Wenzke, Michael Wiener





















