Weingut Hans Ruedi Adank
St. Luzi, Fläsch, Switzerland
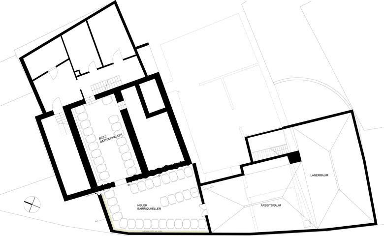
Das beschauliche Weindorf Fläsch liegt in einer zum Rheintal hin nordwestlich geöffneten Senke. Die locker zueinander stehenden Häuser verdichten sich um den Dorfbrunnen und sind gekennzeichnet durch schweres, hell verputztes Mauerwerk mit rhythmisch gliedernden Fensteröffnungen. Den Weingütern sind kleine Höfe hinter Torbögen vorgelagert, Spaliere beleben die Hauswände. Wie bau man modern in solch einer Idylle? Hansruedi Adank und seinem Architekten Kurt Hauenstein, der in einem Nachbarhaus sein Atelier hat, ist dies bestens gelungen. Neben dem alten Wohnhaus mit dem gewölbten Fasskeller in Naturstein entstand aus einer alten Remise der Verkostungs- und Verkaufsraum, zusammen mit einem Vorplatz, der mit einer niedrigen Mauer und einem Brunnen den Hof neu und in moderner Frische gestaltet. Er bildet einen einladenden halböffentlichen Raum an der Dorfstrasse. Auch die Lochfassade der umliegenden Häuser wurde auf geistvolle Weise neu interpretiert. Obgleich die Anbauten in ihrem Massstab und Volumen den Eindruck erwecken, als hätten sie schon immer zum Ortsbild gehört, so entwickeln die bündig ins Mauerwerk gesetzten neuen Fenster in ihren schmalen Stahlrahmen eine besondere ästhetische Dynamik, die fröhliche Leichtigkeit vermittelt und zusammen mit dem offenen Vorplatz zum Eintreten einlädt. Hat man sich aussen noch gefragt, welche Funktion die unterschiedlich gesetzten Fenster für den Innenraum haben , so zeigen sich innen die verschiedenen Ausblicke und eine klare Belichtung, die den Wein bei der Verkostung gut zur Geltung kommen lässt. Eines der Fenster gibt sogar dem schönen Barrique-Keller Licht über Eck und erinnert damit an die Belüftungsschächte im benachbarten Gewölbekeller. Durch ihn gelangt man in den anschliessenden Gärkeller, in dem sich neben den neuen Edelstahltanks auch noch die heute nicht mehr erhältlichen Stahltanks mit Innenbeschichtung befinden. Der Winzer schwört, dass in diesen Tanks die Weine bei der Vergärung einen weicheren Ton als im Stahl erhalten. Alt und Neu haben sich hier in Funktion und Architektur offenbar perfekt zusammengefunden.
(Text: Andreas Gottlieb Hempel, Callwey Verlag)
- Arquitectos
- atelier-f architekten
- Año
- 2009
- Estado del proyecto
- Construido













