Wohnhaus Fraissa
Freissen 1, Valendas, Switzerland
Über dem Vorderrhein auf 635 m.ü.M., zum Safiental gehörig, liegt das Dorf Valendas. Inmitten des Dorfes befindet sich auf einem 228m2 grossen Grundstück das denkmalgeschützte Haus Fraissa aus dem 18./19. Jahrhundert, eines der frühesten Beispiele des Biedermeier-Stils in Valendas. Gemäss der Beschreibung des Bundesinventars der schützenswerten Ortsbilder der Schweiz von nationaler Bedeutung (ISOS) ist die Fraissa ein „interessantes Gebäude mit besonderen Qualitäten bezüglich Stellung und Form, jedoch sanierungsbedürftig.“
Das Haus wurde unter Berücksichtigung der Aspekte des Denkmalschutzes umgebaut und innen wie aussen entsprechend den feuerpolizeilichen und energetischen Anforderungen gesamtheitlich saniert. Die Arbeiten umfassten die Gebäudehülle (Fassade, Fenster, Dach), eine Erneuerung der haustechnischen
Anlagen sowie in geringem Masse die Kellerräume und die Umgebung. Der Umbau erfolgte auf der Basis der ursprünglichen Grundstruktur: Die Raumaufteilung sowie Raumnutzung wurden belassen.
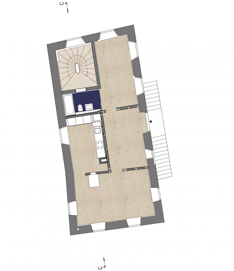
Im Eingangsgeschoss sind ein Studio und Nebenräume für Keller, Waschküche und Technik untergebracht. In den zwei Obergeschossen befinden sich je eine 2.5-Zimmer-Wohnung und im Dachgeschoss eine 3.5-Zimmer-Wohnung. Die Erschliessung der beiden Wohnungen im 2. OG und DG erfolgt über ein neues Treppenhaus in der nord-westlichen Gebäudeecke.
- Arquitectos
- architektick
- Año
- 2019
- Estado del proyecto
- Construido
- Cliente
- Privat
- Bauingenieur
- biro d'inschignier Blumenthal, Ilanz
- Bauphysik
- Martin Kant Bauphysik, Chur













