Commodore John Barry Elementary School

Philadelphia, PA, USA
Foto © Matt Wargo

The new Commodore John Barry Elementary School accommodates 646 students from pre-kindergarten through 8th Grade on Philadelphia’s west side. The site is bounded on all four sides by 2 story brick row houses, dating to the early 1900’s.

 

The design challenge for this project was to provide a first rate academic facility on a gritty, tight urban site. To maximize outdoor play area and neighborhood green space, a four-story school was designed with minimal at grade play areas and roof gardens adjacent to 4th floor classrooms.

The schedule was a challenge for the project.  Design and Construction Documents were completed in 8 months and construction complete in 16 months.  The original schedule called design and construction to be completed in 3 years.  

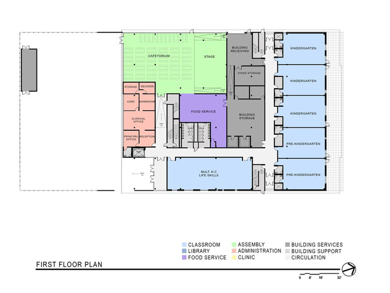
The new school contains 46 classrooms. Additional instructional spaces include Art, Science, Vocal Music, and Technical Education.  The building contains a Cafetorium with a stage area and Warming Kitchen, a Gymnasium with locker and shower areas and an Instructional Media Center, containing a computer classroom, conference rooms and a library.  

Foto © Matt Wargo
Foto © Matt Wargo
Dibujo © Ross Barney Architects
Dibujo © Ross Barney Architects
Foto © Matt Wargo
Foto © Matt Wargo
Foto © Matt Wargo
Foto © Matt Wargo
Año
2008
Estado del proyecto
Construido

Otros proyectos de Ross Barney Architects 

Railyard
Rogers, USA
McDonald’s Chicago Flagship
Chicago, USA
The Chicago Riverwalk
Chicago, USA
Fermilab OTE Building
Batavia, IL, USA
Oklahoma City Federal Building
Oklahoma City, OK, USA