Schulhaus Grossmatt Hergiswil
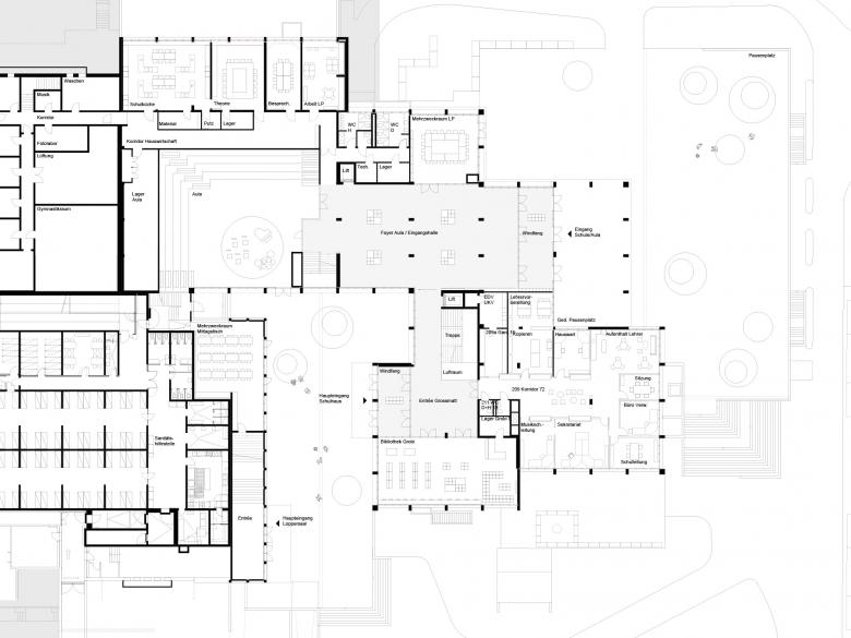
Die Schulanlage Grossmatt wurde im Jahre 1974 vom Architekten Walter Schindler erstellt. Im Laufe der Zeit wurde das Schulhaus durch diverse Um- und Erweiterungsbauten stark verunklärt. Mit der Gesamterneuerung wurden die aus den früheren Massnahmen heraus entstandenen Nachteile behoben und die Hauptzugänge für die Nutzungen der Schule Grossmatt und Loppersaal neu organisiert.
Indem der Eingangsbereich von 1990 rückgebaut und neu kompakter gestaltet wurde entstand zwischen den beiden Gebäudeblöcken ein neuer Innenhof. Grosszügige Vordächer markieren die nun separierten Haupteingänge von Schule und Saalbau. Durch die beschriebene bauliche Massnahme wird die ursprünglich gut proportionierte Volumetrie der Schulanlage wiederhergestellt und damit verbunden die natürliche Belichtungssituation in den erdgeschossigen Erschliessungsbereichen und im Foyer wieder deutlich verbessert.
Bei der Ausgestaltung der neuen Fassade wird die ursprüngliche Architektursprache des Schulbaus aufgenommen. Die mächtigen, ein- bis zweigeschossigen, aussenliegenden Betonstützen im Sockelbereich bleiben weiterhin unverkleidet sichtbar.
Aus diesem Grund wird der thermische Abschluss in jenen Gebäudeteilen weiterhin auf der Innenseite der Stütze geführt. Die Fensterfronten und raumhohen Verglasungen sind mit bronzefarbenen, eloxierten Aluminiumprofilen konstruiert. Der ursprünglichen Gliederung entsprechend werden die hochliegenden Glasfelder erhalten und als Kippflügel ausgeführt. Diese sind mit teilweise mit integrierten elektrischen Antrieben ausgestattet und dienen der kontrollierten natürlichen Lüftung. Bei diesem System wird das Raumklima über eine intelligente Steuerung kontrolliert. Ziel ist es, das Gebäude in der Nacht im Sommer effektiv zu kühlen und tagsüber ganzjährig ein optimales und zugfreies Innenraumklima zu gewährleisten.
Über der prägenden Betonstruktur liegt das eigentliche Schulgeschoss das wie bisher aussenseitig von einer mineralischen Wärmedämmung umschlossen wird aber neu in einer wertigen Keramikhülle eingekleidet erscheint. Es handelt sich dabei um grossformatige, grüne Keramikplatten mit Wellstruktur. Das Material bildet trotz der offensichtlich vorgehängten Konstruktionsweise mit seiner mineralisch harten Oberfläche eine Referenz zur ursprünglichen Sichtbetonfassade ohne diese nachbilden zu wollen.
- Año
- 2019
- Estado del proyecto
- Construido
- Cliente
- Gemeinde Hergiswil
- Equipo
- Christina Imfeld (PL), Leonardo Strollo, Rosanna Borsotti, Rafael Schmid, Mark Ziörjen
- Baumanagement
- Ziörjen Baumanagement GmbH, Zürich
- Landschaftsarchitekt
- Schrämmli Landschaftsarchitektur GmbH, Brugg
- Bauingenieur
- Walt Galmarini AG, Zürich
- Elektroingenieur
- Scherler AG, Luzern
- Haustechnikingenieur
- Wirthensohn AG, Luzern
- Sanitäringenieur
- Peter Sanitär Planung, Luzern
- Fassadenplanugn
- Rood AG Metallbauplanung, Stans
- Brandschutzplanung
- Makiol Wiederkehr AG, Beinwil am See
- Signaletik
- Velvet Creative Office, Luzern















