Alterswohnungen Feldstrasse, Zürich
offener Projektwettbewerb 2007
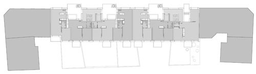
Ein weit in den Strassenraum hineinragender 'Aussichtsbalkon' erschliesst jeweils zwei Wohnungen.
Der dahinter liegende kleine Hof bringt Luft und Licht in die Tiefe des Grundrisses. Er bietet aber auch Hand zu nachbarschaftlichem Kontakt auch über mehrere Geschosse hinweg. Mit der so ausgebildeten Einkerbung ins Gebäudevolumen kann auf einfache Art auf die Lärmproblematik an diesem belasteten Standort reagiert werden.
- Año
- 2007
- Estado del proyecto
- Diseño







