WU Modern Chao Cuisine (Shenzhen) by AD ARCHITECTURE
Project Name: WU Modern Chao Cuisine (Shenzhen)
Client: Ms. Wu
Design Firm: AD ARCHITECTURE (http://www.arch-ad.com/)
Chief Designer: Xie Peihe
Construction Firm: Shenzhen Botao Construction Co., Ltd.
Lighting Consultant: Hesper Lighting Design (Guangzhou) Co., Ltd.
Furniture Team: YALI WOOD
VI Design: Lin Shaobin
Location: Shenzhen
Area: 800 Square Meters
Main Materials: Stainless Steel, Japanese Paper, Acrylic, Moorgen Products, Metal Mesh, Sintered Stone Panel, Italian Handmade Paint, Bespoke Wooden Flooring
Start Time: January 2021
Completion Time: July 2021
Photography: Ouyang Yun
Wu is a window through which people can look into the sky. As entering it, the view will gradually open up and a modern wonderland comes into view.
New Chaozhou Cuisine / A Diversified Space
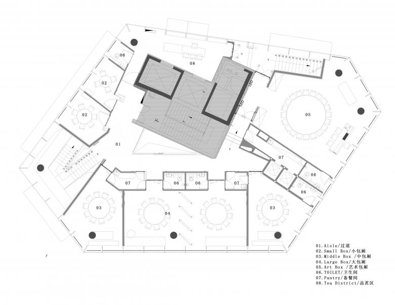
Located in Block E1 of OCT Tower in Shenzhen, the project is a modern Chaozhou cuisine restaurant that carries the mission of carrying forward Chaozhou cuisine. It has eight private dining rooms, a dining hall, a whiskey bar and a wine room, and provides innovated Chaozhou cuisine of high aesthetic value in a poetic architectural space.
This restaurant is opened a year after the successful operation of WU CLUB, which reflects the client and AD ARCHITECTURE's successful exploration of catering space and business mode. Conceiving the space as a kind of modern energy, AD ARCHITECTURE adopted progressive ideas and an interim status to create a unique spatial condition, and to let events that happen in the space carry the spatial value.
Rationality / Architectural Aesthetics and Logic
The structural logic of the space extends the building's free character. The spatial layout is unrestrained and diversified. With an emphasis on the sense of temptation in the space, the design challenges people's stereotypical architectural values and bounded imaginations. The entrance keeps a low profile with an automated door remaining closed when there are no visitors. The space reveals grandness in small details, and the spatial order unfolds along the twisting, tranquil circulation route. All of these portray a poetic scene.
The restaurant's dining hall is mainly finished with grey textured paint and wooden flooring, with an emphasis on the connection with outdoor greenery. Meanwhile, the metal ceiling structures highlight the sense of fashion and business and also create a sense of peaceful coziness.
As the golden automated door slowly opens, guests will find a multifunctional service zone that combines both a reception desk and a bar counter. A lighted glass liquor cabinet looks delicate and classy. In front of the reception desk stand a row of wooden boxes that effectively highlight private dining experience in the dining hall and also generates a strong sense of architectural order. Above the bar counter, modern geometric structures are placed next to woven wooden handcrafts in a way that create a spatial ambience that tempts people to explore.
Construction / Dialogue Between Reality and Future
AD ARCHITECTURE understands future as an ideal status that we want to touch. Wu leads the guests into an otherworldly spiritual space similar to a virtual movie world. Being hyper-realistic, exaggerated and abstract, it presents a sense of future in a way that is also storytelling. The space connects a series of events to create an interesting, dramatic scene.
The first and second floors are connected by a sculptural black staircase. It creates striking visual experience while also guiding the guests, embodying a combination of both functionality and aesthetics.
Light / Modern Aesthetics of Nature
AD ARCHITECTURE believes light is an explicit material which should be presented as a visible subject in the space. The design team exploited the materiality of light to express the spiritual world of humans. Through light, various emotions, mysterious, silent and ethereal, all emerge.
Passages, where people stay for a short time, are easily neglected in design. However, AD ARCHITECTURE team believes that such transitional space without a strong functionality is the best choice for incorporating sentimental design expressions. For this project, the designers created a winding, tranquil circulation through the passage, which creates an Oriental aesthetic in an unrestrained, empty and free status.
Storytelling / Negative Space as the Medium of Explicit Objects
The behaviors in a negative space is the true subject, while the story derived from behaviors are the core.AD ARCHITECTURE believes that the space enclosed by objects have strong directivity and intentions. The media that convey physical phenomena in a space are usually invisible, but they are utilized and should be presented as a visible subject in the space. When people gain pleasure in the space, the rules of game in it become valuable and start benefiting users.
The design of private dining rooms highlights a conversation with the surrounding environment. Its simple architectural language emphasizes comfort and focus as well as the interaction between people. The green and red paper decorations deliver the ancient color aesthetics that can be dated back to the Han dynasty of China. Presented in an irregular form, the space looks like a natural compound or an extension of the building. It seems to be an unexpected yet intentional design that creates a sense of certainty out of the blue.
The concept of the spatial formation is "a broken, hollowed sculpture", which turns reality into an illusion. An exaggerated expression like this cannot be made without the power of art.
Playfulness / Expressions of Items
The designers experimented with the forms of expressing handmade paint. The team mixed metal grains with grey decorative paint, which unexpectedly produced a concrete-like plain texture and also a glorious visual effect. The wooden floor contrasts with the metal materials in a way that achieves the unity of softness and hardness. Cold and warm colors are alternated not only to induce the harmony of coolness and warmness, but also to integrate more elements such as temptation, humor and mystery into the space.
Collision and Integration
This project exploits Western design order to create a space that expresses Oriental sentiments and philosophy. With a winding circulation, thoughtful details, as well as high-profile and restraining expressions, it shows the fusion of Eastern and Western aesthetics.
- Année
- 2021
- Statut du projet+
- Construit























































