KRONENGASSE SEMPACH
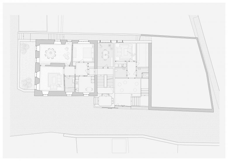
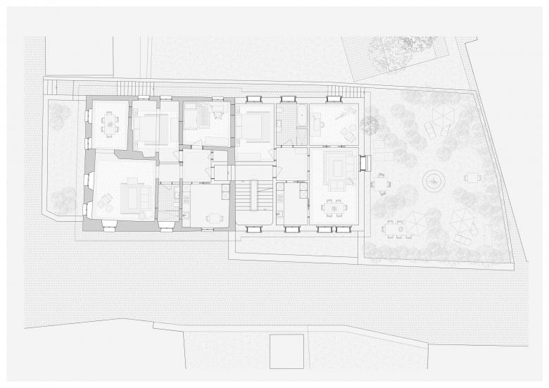
Das Grundstück an der Kronengasse liegt in mitten des Städtchen Sempach, zwischen der Stadt- und Oberstadtstrasse. Das rückwärtige Gefiert zwischen der geschlossenen Reihenhausstruktur im Westen und der Neubauzeile im Osten charakterisiert sich durch ein heterogenes Gefüge welches durch einzelne Kleinbauten geprägt ist. Durch die Aufweitung der Gasse an der Stadtstrasse wird ein Hauptzugang zur Kronengasse definiert und bildet zugleich einen Platz vor dem Haus. Die Zugangsseite von der Oberstadtstrasse ist etwas beengend und hat keine klare Einmündung in die Strasse. Das Grundstück ist dreiseitig benachbart durch eine über Jahrhunderte gewachsene Baukultur. Einzig im Osten flankiert den Perimeter eine Neubauzeile.
- Statut du projet+
- Design








