Student Residence and Reversible Car Park
Name of work in English
Student Residence and Reversible Car Park
Name of work in original language
Résidence pour étudiants et parking réversible
Placement
Shortlisted
Prize year
2022
Location
Saclay, France
Year completed
2020 (Year began 2018)
Authors
Stephanie Bru (1973 France); Alexandre Theriot (1972 France); Quentin Madiot (1991 France); Adrien Verschuere (1976 Belgium); Benoît Delpierre (1981 Belgium); Justine Devergnies (1989 France)
Collaborators
Building physics: Inex Structural engineering: Batiserf Design: Chevalier-Masson Landscape architect: Franck Neau
Program
Collective housing
Labels
Compact, Student
Total area
4700 m2
Usable floor area
15000 m2
Cost
1340 €/m2
Client
1001 VIES & EPA PARIS SACLAY
Client Type
public
Map
LatLng: (48.714782, 2.198741)
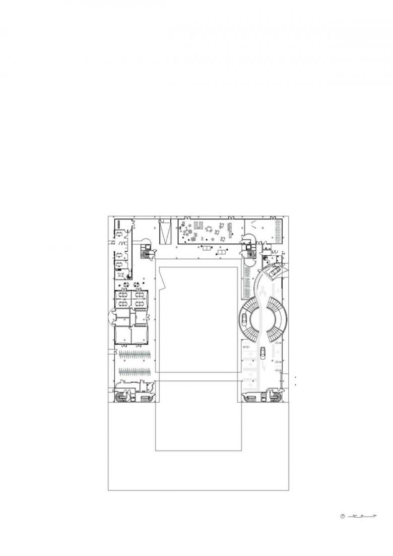
185 social student housing units associated with a reversible car park (housing/offices) with a superstructure of 500 spaces, sports hall, multi-purpose hall and shops
The volume of the building is based on the rectangular shape of the land and assumes its U-shape which encloses the interior of the block. This interior, treated as an open-air garden, is the real lung of the project. Rather than a building, the project should even be presented as an economical and equipped structure. The programme brings together several disparate elements (student accommodation, communal facilities, shops, public and private car parks). The distribution of the different programmes follows a logic of superposition: a double-height ground floor hosting the shops and collective spaces of the student residence; two levels R+1 and R+2 in a large open plateau for public parking spaces; at levels R+3, R+4 and R+5, three levels of housing; and finally an attic level hosting the upper levels of some duplex housing.
As well thought out on the scale of the car as on that of the individual, the building seeks a way between a strictly functionalist approach and that constrained by domestic standards. The clarity of these structural responses allows the building
to offer great flexibility and reversibility of use.
Winner of the Equerre d'Argent 2020
A Housing program in the heart of the Plateau de Saclay raises some questions: It means to imagine how to live together in an urban environment, founded on its well thought landscape qualities and its situation in a large scale territory.
This future hub of activities is located in the centre strip of the Quartier de l’école Polytechnique. The way it has been drawn looks like an American campus inspiration, mostly because of its continuous organisation, which forms a series of compact and opened blocks. The project is part of this strong urban system. Beyond the regularity of this drawing, the question of reversibility has already been well thought, especially regarding mobility.
Our project is founded on these future possible mutations, of uses and space. In its main lines, the project adopts the same morphology of its neighbours. It enhances the existing strong urban lines, but adds a large central space. This large shared garden is the main link between all the different activities of the project. The project distinguishes itself thanks to the presence of this garden. It brings views and breathing, at every floor.
The structure and the program take part in a unique logic. The project is ruled by a sense of economy, in space and in function. It stands as its identity. Following this idea, the building is as compact as it can be. The logic of implantation develops 16m large floors, allowing light to enter, following the whole circumference of the building. The inside spaces are also quite generous, with a 2m50 high for housing and 2m75 for the car park. The ground floor is even higher, 5m25 high, in order to give the possibility to add mezzanines. The strong structure is not only rigorous but also generous.
In the end, the structural grid is more generous than the one usually used in housing programs. The efficient structure is a real choice, using concrete slabs and columns, and allows to get rid of the usual transversal concrete walls. It reinforces the possibilities of variations in the organization: For example, the conversion between a T4 in T1 is very simple.
- Année
- 2020
- Statut du projet+
- Construit








