Urgell

Urgell, Barcelona, Espagne

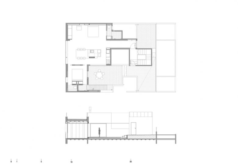
Refurbishment of an apartment for short stays and terrace renovation. High standard finishes.

Année
2012
Statut du projet+
Construit
Équipe
Margaret Stiepen, Eva Cotman

Autres projets de COMA Arquitectura 

Julian lopez Flagship Store
Barcelona, Espagne
La vaqueria
Barcelona, Espagne
3 apartment renewal
Barcelona, Espagne
Wooden efficient singlehouse
Argentona, Espagne
Finlandia
Barcelona, Espagne