Neubau Feuerwehrhaus Wannweil
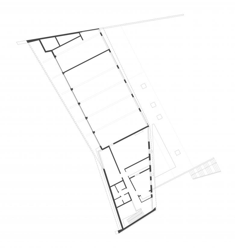
Der Neubau der Freiwilligen Feuerwehr Wannweil steht am Rand eines Gewerbegebietes auf einem Wiesengrundstück in unmittelbarer Nähe zum Waldrand. Der hier einzuhaltende Abstand von 30 m sowie die innere Organisation des Gebäudes haben einen dynamisch-expressiv geformten zwei-geschossigen Baukörper entstehen lassen, der sich in die ansteigende Topografie eingräbt und verankert.
Das Gebäude gliedert sich in drei Teile: Eine Fahrzeughalle, dahinterliegend in einem erdüberdeckten Bereich Werkstätten und Lagerbereich sowie den zweigeschossigen Gebäudeteil mit Leitzentrale, Schulungsräumen und Umkleiden. Alle Nutzungen mit ihren unterschiedlichen Raumhöhen werden in der Großform des Baukörpers geklammert. Die Schrägstellung der stirnseitigen Wand dient zu Übungszwecken. Die Kommandozentrale in zentraler Gebäudelage bietet freie Sicht zur Parkplatzzufahrt und in die Fahrzeughalle.
Die innere Nutzung spiegelt sich in der Reduzierung auf wenige Materialien wider: großflächige geschlossene Wandflächen in Beton bilden einen spannungsreichen Kontrast zu den Verglasungen der Fenster- und Torflächen. Eine sorgfältig verarbeitete Holzfassade im zweigeschossigen Gebäudeteil differenziert die Nutzräume der Feuerwehrbelegschaft und unterstreicht den haptischen Eindruck der Anlage.
Auf der massiven Mitteltrennwand und auf den Einzelstützen zwischen den Fahrzeugboxen lagert eine weitgespannte einfeldrige Binderkonstruktion, die ihre Fortsetzung in einer mehrfeldrigen Konstruktion über dem zweigeschossigen Gebäudeteil findet.
- Année
- 2016
- Statut du projet+
- Construit
- Client
- Gemeinde Wannweil
- Landschaftsarchitekten
- planungsgruppe stahlecker, Stuttgart
- Tragwerksplanung
- tragwerkeplus, Reutlingen











