Schulanlage Sonnenberg
Wettbewerb 1. Preis – Der Erweiterungsneubau für die Schulanlage Sonnenberg in Thalwil gründet auf strengen Winkeln, welche die Grundstruktur aus vier Haupträumen und einem Binnenraum bilden. In der Materialisierung dieses in erster Linie dualen Raumsystems setzt sich das Gebäude mit sich selbst und dem bestehenden Kontext auseinander.
–
Die Schulanlage Sonnenberg in der Zürichsee-Gemeinde Thalwil besteht aus mehreren Einheiten, die von einem Wohnquartier umgeben sind und über geschützte Aussenbereiche verfügen. Erstellt wurde die Anlage 1975 vom Zürcher Architekten Hans Zangger.
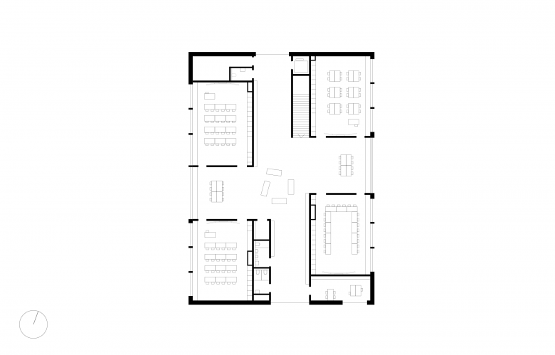
Das Ensemble der bestehenden Schuleinheiten wird um einen Neubau erweitert, der sich in die Gesamtanlage einfügt und über eine einfache und klare räumliche Organisation verfügt. Das Anordnungsprinzip des gestaffelt positionierten Bestandes wird konzeptionell fortgeführt. Der Haupteingang, der sich zum bestehenden zentralen, hofartigen Erschliessungsraum ausrichtet, bildet eine eindeutige Adresse.
Die Gebäudetiefe erlaubt es, die Klassenräume in die Geschossecken zu setzen, wodurch eine Korridorerschliessung umgangen werden kann. Es entsteht ein offener Bereich, der sich als kreuzförmiger Binnenraum zwischen den Klassenräumen bis zur Fassade hin aufspannt und mit Durchläufigkeit und Transparenz besticht. Die wechselnden Sonnenstände erzeugen unterschiedliche Lichtstimmungen und bewirken eine angenehme Atmosphäre, in der man sich gerne aufhält.
Die «weiche» Fläche der vertikalen Zedernholzschalung auf der Aussenseite kontrastiert zu den vorgehängten Betonelementen, die ihrerseits die innere Raumstruktur nachzeichnen und gleichzeitig optisch auf die Betonbauten des Bestandes verweisen.
https://www.fischer-architekten.ch/de/projekte/schulanlage-sonnenberg-thalwil
- Année
- 2018
- Statut du projet+
- Construit
- Client
- Politische Gemeinde Thalwil










