Byfangweg
Byfangweg is part of a residential district west of Basel's old town. Its narrow streets are characterized primarily by low-rise residential buildings from the 19th century. The building on the site, originally built as a single-family house, was replaced with a new building that offers each of four families the sense of their own home.
This approach led to the basic idea of establishing a gap between the new building and its neighbors, thereby "exposing" all four facades. The street and garden facades are designed of red brick, whereas white stucco distinguishes the firewall and the side yard, whose space serves as a balcony layer. What emerges is a virtually freestanding building – one that has a clear orientation and fits seamlessly into the street front.
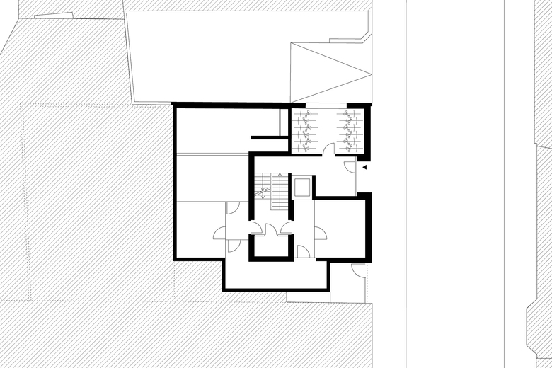
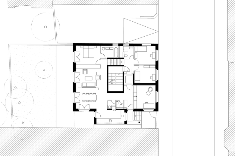
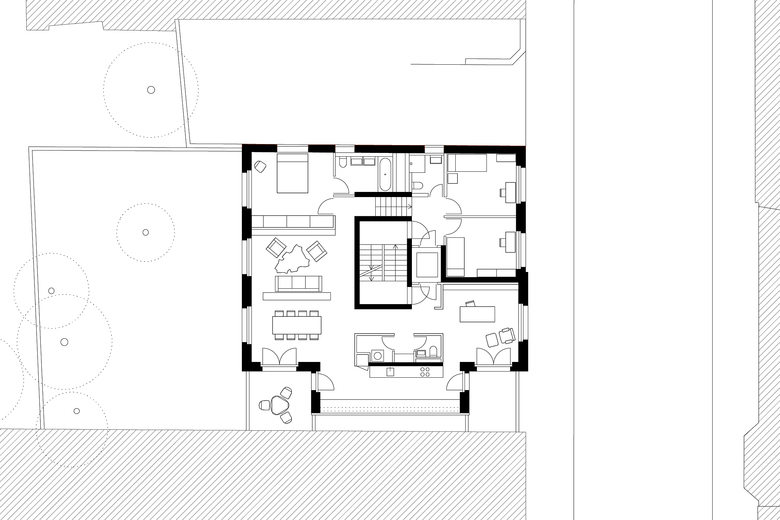
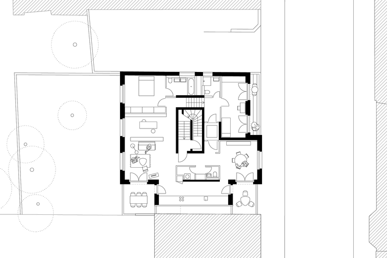
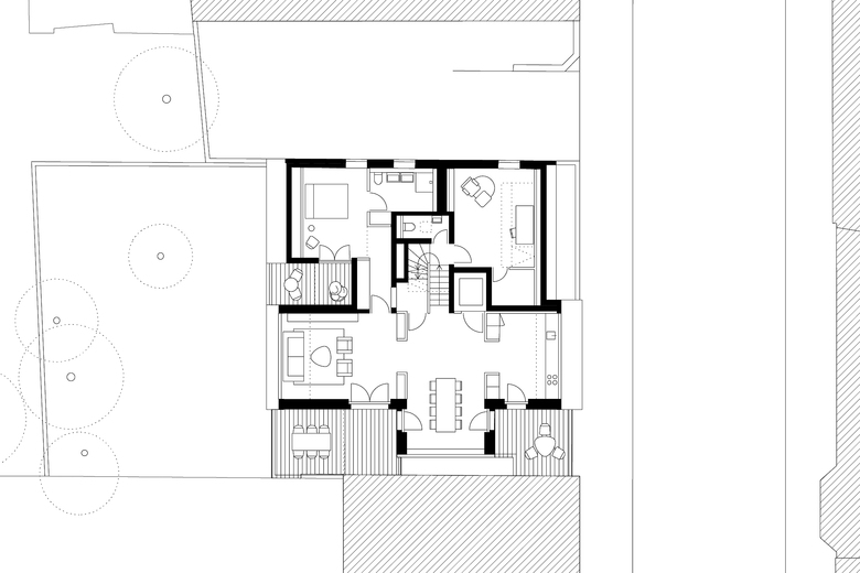
Inside, the desire to have four dwellings of equal value under one roof leads to a complex spatial configuration. Every apartment has at least two levels, with the living area below and bedrooms above. If needed, each part can be used as an independent residential unit, facilitating a multitude of conceivable living scenarios for lifelong use. The shifting front facade and the arrangement of windows in the firewall communicate this interior spatial concept to the outside.
The result is an apartment building for four families that is made of four individual houses assembled into a three-dimensional architectural puzzle.
Program:
Apartment Building
Design and Construction:
2010 – 2016
Team:
HERLACH HARTMANN FROMMENWILER
with Nicole Baron, Markus Leixner, Christian Weyell and Alessandro Carrea, Madeleine Kessler, Zdeněk Liška, Christian Poules, Mariana Santana, Jens Van Zele
Building area:
186 m2
Total floor area:
515 m2
Client:
Private
- Année
- 2016
- Statut du projet+
- Construit















