Sacrisity

Photo © J. Sokolowski

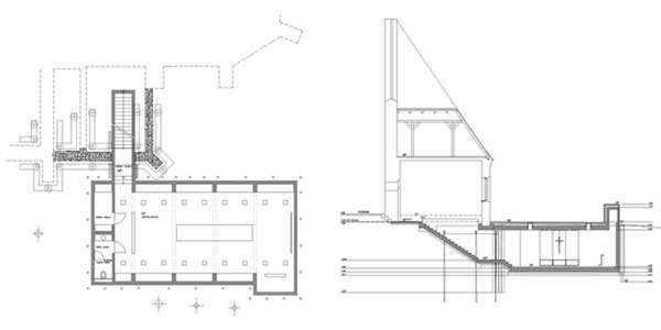
The underground structure of the sacrisity was divided into three main zones: the first one is a corridor which is an extension of the stairs, together with the adjacent wardrobe and the toilet; the second one is the space for awaiting and meetings with the faithful (this is where also the vault was installed, where monstrances and valuable liturgical vessels are kept behind armour glass); the third one is the proper sacristy.

Concrete, wood, stone and frosted glass are the only materials used for the construction of this structure (also for the interior decoration).

Photo © J. Sokolowski
Photo © J. Sokolowski
Visualisation © HS99
Photo © HS99
Année
2001

Autres projets de HS99 

Academic Library
Katowice, Pologne
Glos Pomorza
Koszalin, Pologne
H8
Jozefow near Warsaw, Pologne
Market Square 2
Koszalin, Pologne
City Hall
Konstancin, Pologne