Flur 20
Bei diesem Low-Budget-Projekt handelt es sich um einen sozialen Wohnbau in Graz, der es sich zum Ziel gemacht hat, mit geringsten Mitteln und systematischer Gebäudeorganisation maximale Wohnqualität und gestalterischen Ausdruck zu erzeugen.
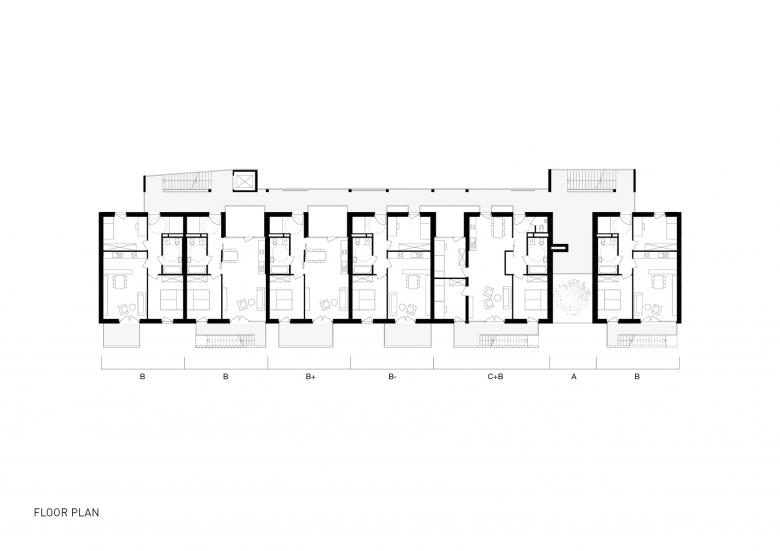
Durch ein flexibles Grundrisslayout und die Möglichkeit des Zu- und Wegschaltens von Räumen wird eine Vielfalt von Wohnungstypologien organisiert. Somit entsteht trotz der systematisch optimierten Struktur des Gebäudes eine kreative Vielfalt und ein entsprechendes äußeres Erscheinungsbild.
Die klare Struktur des Gebäudes und der einfache Baukörper ermöglichen ein sehr starkes modulares System, das durch Kombinatorik, Subtraktion und Addition von Räumen einen hohen Anspruch an Individualität und Gestaltungsvielfalt stellt. Mit diesem System lassen sich 40 verschiedene Grundrisstypologien erzeugen und das bedeutet eine große Flexibilität in der Planungsphase.
- Année
- 2012
- Statut du projet+
- Construit
- Client
- GSL Gemeinnützige Bauvereinigung GmbH
















