Dexamenes Seaside Hotel
Name of work in English
Dexamenes Seaside Hotel
Name of work in original language
Dexamenes Seaside Hotel
Placement
Shortlisted
Prize year
2022
Year completed
2019 (Year began 2017)
Authors
Dimitris Karampatakis (1979 Greece); Giorgos Mitrogiorgis (1982 Greece); Marivenia Chiotopoulou (1984 Greece); Dimitris Sotiropoulos (1983 Greece)
Program
Food & Accommodation
Labels
Food, Resort
Total area
6519,95 m2
Usable floor area
2058,90 m2
Client
Nikos Karaflos
Client Type
private
Map
LatLng: (37.7684804, 21.2972927)
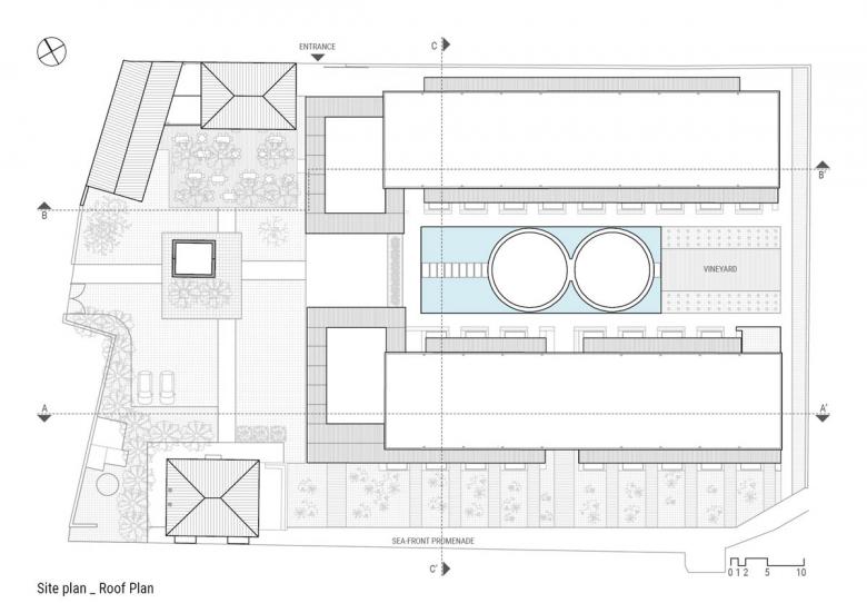
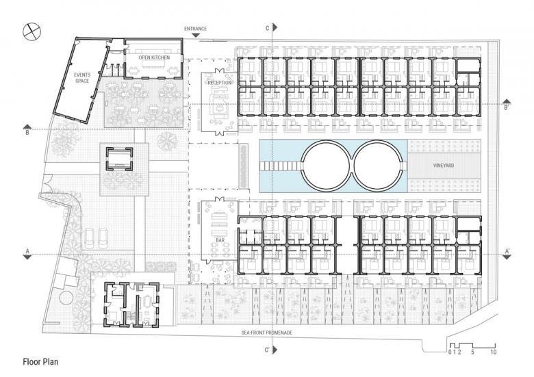
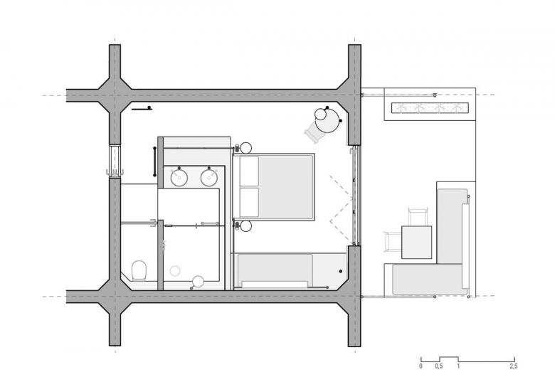
Dexamenes date back to the early 1900s, when the concrete tanks were built on the coastline, for wine fermentation and export overseas. The conversion of the site into a hotel intended to highlight its brutality with interventions in a complimentary palette, showcasing the raw beauty of the existing buildings leaving them relatively untouched. Dominating the site are the 2 concrete blocks, each divided into 2 rows of 10 wine-storage tanks, perfectly sized to become hotel rooms. The space between the 2 blocks has been transformed from an industrial scrap yard into a peaceful, meditative courtyard. A shallow pool separates the 2 rows of rooms, reflecting light and providing a cool breeze. Two impressive steel silos have been delicately preserved and stand proud in the water. Towards the seafront, a wide promenade walkway raised above the sand leads to the other parts of the hotel and down to the beach. Local grape varieties are becoming well established along the edges of the garden and will gradually make their contribution to the microclimate and productivity of the hotel. Additionally, 2 original stone out-buildings were converted to provide in-house dining and event facilities focusing on the culture of the area through art and cuisine. The journey of Dexamenes has been a unique opportunity to participate in the radical transformation of a ghost-shell from another era, to what is today considered a high end design hotel. Our design approach intended to add value with as little additions as possible, overwhelmed by the original atmosphere of the relic. We celebrate simplicity and the beauty of decay, not through a curated revival of what the building had once been, but rather by a showcase of the current state as beautiful and unique in its own right. The challenges beyond design, included changing the use of the abandoned factory, rather than entirely demolishing it, bringing back life not only to the building complex, but rather the entire formerly undervalued area, scarred by the relics of an ex-industrial installation. The intervention would shed a new light to a neglected side, and highlight both natural and man-made features. From the active involvement of local craftsmen in the construction, up until the activation of the local scene and productive land, the site has managed to remain vibrant and touch off local regeneration. In converting the site into a hotel, the intention was to show off the history and raw beauty of the existing buildings complimenting their brutality with elegant interventions. A complimentary palette of concrete, steel, timber and engineered glass ensures that new elements tread lightly with the strong presence of the site. Original features of the tanks such as manholes and the patina of the walls have been preserved to frame the new elements: a narrow black steel framework collects the various detailed elements within the spaces. Textured glass brings light onto the warmly toned polished terrazzo - a visual link to the texture of beach-pebble aggregates revealed wherever the old walls were sliced through. A utilitarian upcycling of waste re-arranged and incorporated original parts of the shell into the new design: wall cut-offs from the tanks for room openings, are now scattered in the hotel as stepping stones in the pool, or reinvented as furniture. Reclaimed bricks found in original structures line the floors and terraces. The complex water-piping system of the factory was creatively reused for handrails at the promenade.
- Année
- 2019
- Statut du projet+
- Construit






